Lời giải cho nhà ống có mặt tiền bị méo

Cách làm này vừa để tận dụng diện tích, vừa tạo nên mặt tiền ấn tượng cho ngôi nhà.

Ba tầng dưới là không gian sống của gia chủ. Hai tầng trên bố trí ba phòng trọ khép kín và một sân thượng chung. Để tách bạch không gian ở và cho thuê, nhà có hai cầu thang: một nằm cạnh nhà, dành cho khách và một cầu thang trong nhà dành cho chủ.

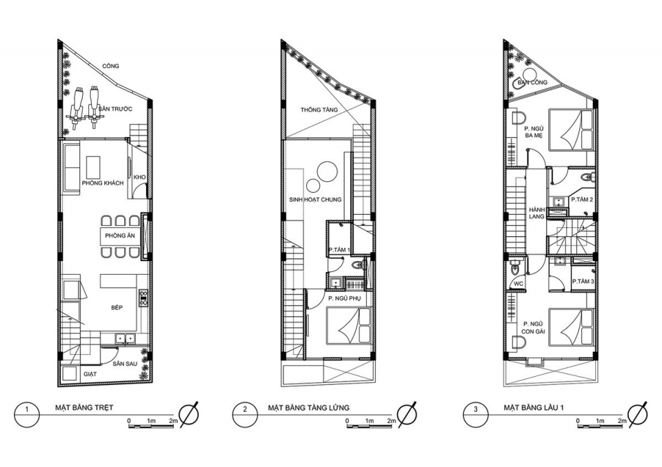
Ở tầng trệt, phòng khách, phòng ăn và bếp được bố trí trong một không gian mở theo chiều dọc nhà. Gầm cầu thang đồng thời là các hộc chứa đồ, bao gồm cả kệ tivi. Phía sau là một khoảng sân vườn nhỏ giúp đưa ánh sáng và thông thoáng tự nhiên vào khu vực bếp và phòng ăn.

Tầng lửng tiếp giáp với khoảng sân và tường rào trước nhà, được sử dụng như một không gian sinh hoạt chung. Hệ cửa kính lớn mở rộng tầm nhìn ra ngoài, khiến không gian có cảm giác thoáng rộng hơn thực tế.

Ngôi nhà đối diện với một khu vườn cây cối lâu năm. Tận dụng ưu điểm đó, phòng ngủ chính ở lầu một được bố trí một vách kính lớn và ban công, để vừa có tầm nhìn mở rộng ra cảnh quan đẹp phía trước, vừa được thông thoáng tự nhiên mà vẫn đảm bảo sự riêng tư cần thiết.

Phòng ngủ con gái ở cùng tầng với phòng ba mẹ. Các tủ, kệ và bàn học được gắn vào tường để tận dụng không gian. Phòng tắm ngăn chia với phòng ngủ bằng vách kính thoáng để mở rộng không gian.

Các phòng cho thuê dù ở phía trước hay sau nhà đều được đón ánh sáng tự nhiên qua hệ vách kính có thể đóng mở linh động. Nhờ việc sử dụng các vật dụng tối giản, các phòng dù diện tích nhỏ nhưng không bị cảm giác chật chội.

Nhà có tổng cộng 6 phòng ngủ và 6 phòng tắm. Các phòng tắm và khu vệ sinh được bố trí gọn gàng để tiết kiệm diện tích nhưng vẫn đảm bảo tính tiện nghi.

Cây xanh được đưa vào nhà qua các bồn trồng cây tích hợp vào cổng nhà, hay các giàn leo xanh trên ban công hình tam giác.

Sân thượng được thiết kế như một khu vườn với các loại cây cảnh và dây leo đa dạng. Hệ thống tưới tự động được sử dụng để giảm thiểu thời gian chăm sóc.

Mặt bằng tầng trệt, lửng, lầu một - không gian sống của gia chủ.

Lầu 2 và 3 là các phòng cho thuê và không gian sân thượng.
Theo vnexpress.net
Tin cùng chuyên mục
- Kiến trúc độc đáo của cung điện gió gần 1.000 cửa sổ làm mát như điều hòa 08.04.2024 | 08:25 AM
- Nhà cấp 4 như mang cả bầu trời vào không gian nhờ cách thiết kế đơn giản 06.02.2023 | 15:06 PM
- Căn hộ Sài Gòn xóa tan cảm giác chung cư 25.04.2022 | 09:24 AM
- Chùa Bút Tháp - Kiến trúc cổ độc đáo vùng Kinh Bắc 19.07.2021 | 08:34 AM
- Độc đáo với nhà mang phong cách quán xá phố cổ Hội An 16.07.2021 | 14:56 PM
- Ngỡ ngàng với nhà mái bằng gác lửng có bể bơi trong nhà 15.07.2021 | 10:38 AM
- Căn nhà cấp 4 tuyệt đẹp với chi phí 850 triệu đồng. 15.07.2021 | 09:33 AM
- Ngôi nhà nhỏ sử dụng các vật liệu đơn giản, gần gũi tạo nên vẻ thân thiện, mộc mạc cho không gian sống. 13.07.2021 | 18:02 PM
- Độc đáo nhà gác xép bằng khung thép đặc biệt ở Đà Nẵng 13.07.2021 | 08:15 AM
- Ngẩn ngơ trước khu vườn bí mật trong ngôi nhà màu trắng ở Hải Phòng 12.07.2021 | 17:41 PM
Xem tin theo ngày
-
Đặc sắc chương trình nghệ thuật kỷ niệm 110 năm ngày sinh Tổng Bí thư Nguyễn Văn Linh và chào mừng hợp nhất tỉnh Hưng Yên và tỉnh Thái Bình
- Chủ tịch Ủy ban Trung ương MTTQ Việt Nam Đỗ Văn Chiến thăm làm việc tại phường Phố Hiến
- Công bố nghị quyết, quyết định của Trung ương, địa phương về sáp nhập đơn vị hành chính cấp tỉnh, cấp xã và kết thúc hoạt động cấp huyện
- Báo Thái Bình - Một hành trình với những mốc son lịch sử
- Thư tòa soạn
- Công bố quyết định của Bộ trưởng Bộ Công an, Giám đốc Công an tỉnh về công tác tổ chức, cán bộ
- Khởi công dự án nhà máy đốt chất thải rắn phát điện công nghệ hiện đại tại xã Thụy Trình
- Khởi công dự án đầu tư xây dựng sân golf Cồn Vành và dự án đầu tư xây dựng khu bến cảng hàng lỏng Ba Lạt
- Việt Nam nâng tầm vị thế tại Hội nghị quốc tế về biển và đại dương
- Hội thảo khoa học: Đồng chí Nguyễn Văn Linh – Nhà lãnh đạo kiên định, sáng tạo của Đảng và cách mạng Việt Nam