Ngôi nhà ở Hải Dương như đèn lồng trong đêm

Đây cũng là nơi sinh sống của gia đình kiến trúc sư Vũ Văn Khiêm (Iday Design). Với bề ngoài khác biệt: tường gạch mộc, lam gỗ và bê tông để thô, ngôi nhà mang đậm dấu ấn cá nhân của người thiết kế kiêm gia chủ.

Vốn yêu thích kiến trúc xanh, anh dành hơn 1/3 phần diện tích đất để làm sân vườn. Hệ cây xanh giống như tấm rèm, ngăn cách ngôi nhà với mặt đường lớn, giúp giảm bụi, ồn vào trong nhà, tăng tính riêng tư.

Nhờ hai lớp bảo vệ (tường gạch và cây xanh), gia chủ tự tin làm những khung cửa lớn, giúp nhà luôn thoáng đãng. Khi chủ nhà chỉ cần ánh sáng mà không muốn gió trời, các cánh cửa kính sẽ được đóng lại.

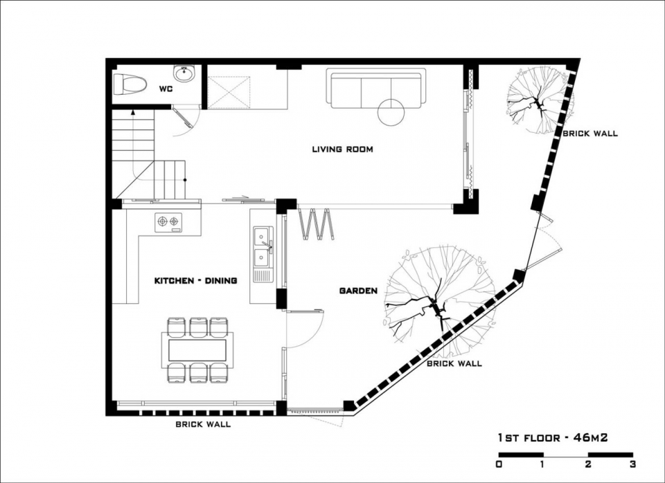
Tầng một rộng 46m2 là không gian liên thông phòng khách, phòng ăn và nhà bếp theo hình chữ L.

Đồ nội thất nhà bếp cũng như toàn bộ ngôi nhà sử dụng nhiều gỗ, phù hợp với nét mộc mạc của tường gạch không trát, sàn bê tông mài, hay trần bê tông thô...

Diện tích nhà không rộng, gầm cầu thang được tận dụng làm tủ để đồ.

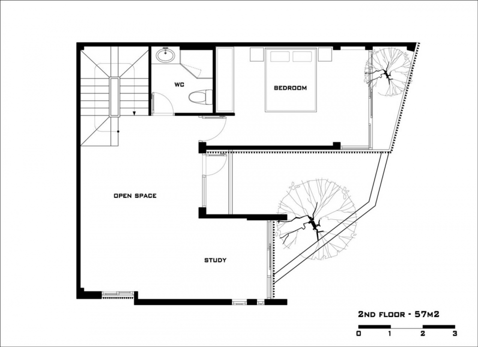
Để tăng diện tích sử dụng, tầng hai được nới rộng ra thành 57m2, với một phòng ngủ, một phòng học tập và một không gian sinh hoạt chung của gia đình.

Khi các con lớn, bố mẹ sẽ chuyển đổi công năng phòng học và khu sinh hoạt chung thành phòng 2 ngủ của các con.

Ngôi nhà đi theo phong cách kiến trúc tối giản hiện đại: ít đồ đạc và sử dụng các vật liệu thô mộc. Nhờ thế chi phí hoàn thiện nhà nếu tính theo đơn giá hiện nay rơi vào khoảng 800 triệu đồng.

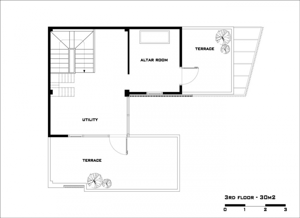
Tầng ba chủ yếu là khu vực thờ tự và giặt phơi, diện tích xây nhà thu hẹp còn 30m2.

Ngôi nhà đã được giới thiệu trên Archdaily, trang web hàng đầu thế giới về kiến trúc. Còn anh Khiêm sau 2 năm sống ở đây cảm thấy rất thoải mái vì nhà thoáng mát vào mùa hè, ấm áp vào mùa đông. Các con anh cũng thích thú khi có nhiều không gian chơi đùa.

Mặt bằng tầng 1.

Mặt bằng tầng 2.

Mặt bằng tầng 3.
Theo vnexpress.net
Tin cùng chuyên mục
- Kiến trúc độc đáo của cung điện gió gần 1.000 cửa sổ làm mát như điều hòa 08.04.2024 | 08:25 AM
- Nhà cấp 4 như mang cả bầu trời vào không gian nhờ cách thiết kế đơn giản 06.02.2023 | 15:06 PM
- Căn hộ Sài Gòn xóa tan cảm giác chung cư 25.04.2022 | 09:24 AM
- Chùa Bút Tháp - Kiến trúc cổ độc đáo vùng Kinh Bắc 19.07.2021 | 08:34 AM
- Độc đáo với nhà mang phong cách quán xá phố cổ Hội An 16.07.2021 | 14:56 PM
- Ngỡ ngàng với nhà mái bằng gác lửng có bể bơi trong nhà 15.07.2021 | 10:38 AM
- Căn nhà cấp 4 tuyệt đẹp với chi phí 850 triệu đồng. 15.07.2021 | 09:33 AM
- Ngôi nhà nhỏ sử dụng các vật liệu đơn giản, gần gũi tạo nên vẻ thân thiện, mộc mạc cho không gian sống. 13.07.2021 | 18:02 PM
- Độc đáo nhà gác xép bằng khung thép đặc biệt ở Đà Nẵng 13.07.2021 | 08:15 AM
- Ngẩn ngơ trước khu vườn bí mật trong ngôi nhà màu trắng ở Hải Phòng 12.07.2021 | 17:41 PM
Xem tin theo ngày
-
Đặc sắc chương trình nghệ thuật kỷ niệm 110 năm ngày sinh Tổng Bí thư Nguyễn Văn Linh và chào mừng hợp nhất tỉnh Hưng Yên và tỉnh Thái Bình
- Chủ tịch Ủy ban Trung ương MTTQ Việt Nam Đỗ Văn Chiến thăm làm việc tại phường Phố Hiến
- Công bố nghị quyết, quyết định của Trung ương, địa phương về sáp nhập đơn vị hành chính cấp tỉnh, cấp xã và kết thúc hoạt động cấp huyện
- Báo Thái Bình - Một hành trình với những mốc son lịch sử
- Thư tòa soạn
- Công bố quyết định của Bộ trưởng Bộ Công an, Giám đốc Công an tỉnh về công tác tổ chức, cán bộ
- Khởi công dự án nhà máy đốt chất thải rắn phát điện công nghệ hiện đại tại xã Thụy Trình
- Khởi công dự án đầu tư xây dựng sân golf Cồn Vành và dự án đầu tư xây dựng khu bến cảng hàng lỏng Ba Lạt
- Việt Nam nâng tầm vị thế tại Hội nghị quốc tế về biển và đại dương
- Hội thảo khoa học: Đồng chí Nguyễn Văn Linh – Nhà lãnh đạo kiên định, sáng tạo của Đảng và cách mạng Việt Nam