Xây lệch tầng mang ánh sáng tràn vào nhà ống

Ngôi nhà mang tên Lee House tọa lạc trên miếng đất 4 x 18m tại quận 7, Thành phố Hồ Chí Minh là nơi sinh sống của một gia đình 3 thế hệ với 5 thành viên. Do quy định xây dựng phải chừa một phần phía trước và phía sau nhà nên diện tích xây dựng thực tế chỉ hơn 50m2.

Trong khi đó, chủ nhà còn cần một gara để xe. Kiến trúc sư Phạm Ngọc Bình cùng các đồng nghiệp tại Risou Architects quyết định thiết kế một ngôi nhà với cầu thang ở giữa và hai vế tầng lệch nhau để tận dụng tối đa diện tích.

Nhờ giải pháp lệch tầng, không gian dành cho cầu thang giảm bớt nhưng đi lại vẫn thoải mái. Giao thông giữa các tầng được thu ngắn lại.

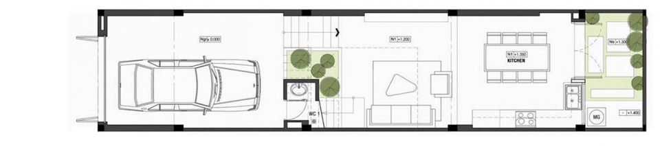
Giải pháp lệch tầng thống nhất ngay từ tầng một khi khu vực sinh hoạt chung gồm phòng khách, bếp, ăn liên thông ở phía sau được nâng sàn cao hơn so với gara để xe ở phía trước.

Khoảng đệm giữa các phòng cũng có thể sử dụng làm những không gian sinh hoạt chung của gia đình. Như góc học tập của trẻ và làm việc của cha mẹ được bố trí ở hành lang tiếp giáp với khoảng thông tầng, nằm giữa phòng của trẻ với phòng của cha mẹ.

Giải pháp lệch tầng không chỉ giúp các thành viên trong gia đình tăng cơ hội tương tác với nhau mà còn giúp ngôi nhà tăng khả năng tương tác với thiên nhiên. Ánh sáng từ giếng trời thông qua cầu thang lệch tầng dễ dàng tiếp cận các không gian trong nhà.

Ngôi nhà có hướng nhìn trực tiếp ra công viên phía trước. Tận dụng lợi thế này, các cửa sổ phía mặt tiền được mở rộng tối đa.

Khi các cánh cửa mở toang, cảm giác phòng ngủ chính như được hòa cùng thiên nhiên bên ngoài.

Hệ cửa hai lớp, gồm lớp bên ngoài là nhựa cứng compact có hoa văn vừa ngăn bớt ánh nắng trực tiếp, vừa tăng tính thẩm mỹ cho công trình; lớp bên trong là hệ cửa lùa bằng kính.

Cả hai hệ cửa giúp ngôi nhà khai thác tối đa hiệu quả của yếu tố tự nhiên, để ánh sáng vào gió trời đi vào trong nhà luôn ở trạng thái hài hòa, cân bằng nhất.

Qua hiệu ứng ánh sáng, lớp cửa như một bầu trời sao rực rỡ. Đặc biệt về đêm, ngôi nhà gây ấn tượng thị giác mạnh.

Mặt bằng tầng 1.

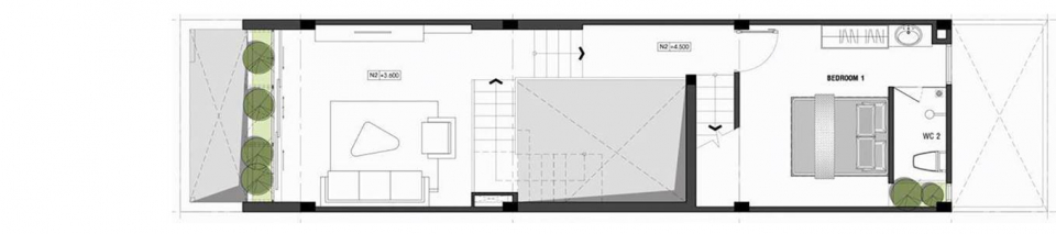
Mặt bằng tầng 2.

Mặt bằng tầng 3.

Mặt bằng tầng 4.
(Theo vnexpress.net)
Tin cùng chuyên mục
- Kiến trúc độc đáo của cung điện gió gần 1.000 cửa sổ làm mát như điều hòa 08.04.2024 | 08:25 AM
- Nhà cấp 4 như mang cả bầu trời vào không gian nhờ cách thiết kế đơn giản 06.02.2023 | 15:06 PM
- Căn hộ Sài Gòn xóa tan cảm giác chung cư 25.04.2022 | 09:24 AM
- Chùa Bút Tháp - Kiến trúc cổ độc đáo vùng Kinh Bắc 19.07.2021 | 08:34 AM
- Độc đáo với nhà mang phong cách quán xá phố cổ Hội An 16.07.2021 | 14:56 PM
- Ngỡ ngàng với nhà mái bằng gác lửng có bể bơi trong nhà 15.07.2021 | 10:38 AM
- Căn nhà cấp 4 tuyệt đẹp với chi phí 850 triệu đồng. 15.07.2021 | 09:33 AM
- Ngôi nhà nhỏ sử dụng các vật liệu đơn giản, gần gũi tạo nên vẻ thân thiện, mộc mạc cho không gian sống. 13.07.2021 | 18:02 PM
- Độc đáo nhà gác xép bằng khung thép đặc biệt ở Đà Nẵng 13.07.2021 | 08:15 AM
- Ngẩn ngơ trước khu vườn bí mật trong ngôi nhà màu trắng ở Hải Phòng 12.07.2021 | 17:41 PM
Xem tin theo ngày
-
Đặc sắc chương trình nghệ thuật kỷ niệm 110 năm ngày sinh Tổng Bí thư Nguyễn Văn Linh và chào mừng hợp nhất tỉnh Hưng Yên và tỉnh Thái Bình
- Chủ tịch Ủy ban Trung ương MTTQ Việt Nam Đỗ Văn Chiến thăm làm việc tại phường Phố Hiến
- Công bố nghị quyết, quyết định của Trung ương, địa phương về sáp nhập đơn vị hành chính cấp tỉnh, cấp xã và kết thúc hoạt động cấp huyện
- Báo Thái Bình - Một hành trình với những mốc son lịch sử
- Thư tòa soạn
- Công bố quyết định của Bộ trưởng Bộ Công an, Giám đốc Công an tỉnh về công tác tổ chức, cán bộ
- Khởi công dự án nhà máy đốt chất thải rắn phát điện công nghệ hiện đại tại xã Thụy Trình
- Khởi công dự án đầu tư xây dựng sân golf Cồn Vành và dự án đầu tư xây dựng khu bến cảng hàng lỏng Ba Lạt
- Việt Nam nâng tầm vị thế tại Hội nghị quốc tế về biển và đại dương
- Hội thảo khoa học: Đồng chí Nguyễn Văn Linh – Nhà lãnh đạo kiên định, sáng tạo của Đảng và cách mạng Việt Nam