Thứ 4, 25/03/2026, 19:53[GMT+7]

Ngôi nhà 41 mét vuông độc đáo nằm trong ngõ nhỏ ở Hà Nội

Thứ 2, 26/12/2022 | 15:34:10
10,498 lượt xem
Công trình Moon house có thiết kế hiện đại, khắc phục hết nhược điểm của khu đất chỉ rộng 41 m² trong con ngõ nhỏ ở Hà Nội.

Mặt tiền được thiết kế với nhiều ô thoáng lấy sáng tự nhiên mà vẫn đảm bảo an ninh cho ngôi nhà.

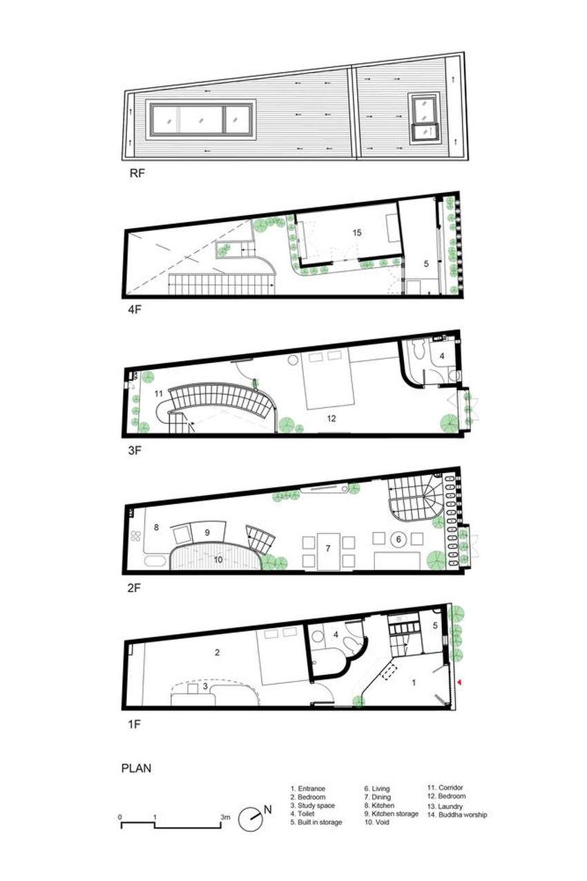
Moon house nằm trên khu đất có diện tích 41 m2 tọa lạc tại quận Thanh Xuân, TP Hà Nội. Vị trí khu đất có ngõ vào chỉ rộng 1,3-1,5 m. Kiến trúc sư NH Village Architects thiết kế một ngôi nhà có thông gió tự nhiên tốt và mang ánh sáng tự nhiên vào nhà càng nhiều càng tốt.

Kiến trúc sư NH Village Architects không sử dụng song sắt cửa sổ như các ngôi nhà khác trong khu vực.

Không gian thờ đặt ở giữa nhà, gần không gian sinh hoạt.

Bàn thờ được đặt ở nhịp giữa, trong một không gian trang trọng gần sinh hoạt chính của ngôi nhà, như phòng khách.

Kiến trúc sư cố gắng thiết kế một không gian thờ vẫn trang trọng nhưng dễ tiếp cận hơn, làm cho nó càng khép kín với sinh hoạt hàng ngày của gia đình càng tốt. Bàn thờ được bao quanh bởi ánh sáng tự nhiên, gió và cây xanh.

Từ khu vực cầu thang, các thành viên có thể quan sát tất cả không gian nhà.

Những hệ tủ dưới cầu thang giúp cuộc sống của gia chủ tiện nghi hơn. 

Không gian của ngôi nhà được thiết kế như một căn phòng lớn liên tục và các bức tường bên trong rất hạn chế. Những bức tường và cầu thang cong này tối ưu hóa không gian.  

Phòng khách của ngôi nhà.

Ngôi nhà hướng gió Đông - Nam nên kiến trúc sư ưu tiên mở cửa sổ để lấy gió. 

Phòng ngủ tràn ngập ánh sáng tự nhiên. 

Hai cửa sổ được lắp đèn phía trên giúp kiểm soát gió vào nhà. Cầu thang và hành lang chính tập trung ở phía sau này và làm cho không gian được lưu thông liên tục từ không gian tầng dưới lên phòng thờ.

Phòng ngủ tầng một và tầng ba linh hoạt đóng mở với không gian chung bằng rèm để ngôi nhà có cảm giác rộng mở dù diện tích sàn hạn chế.

Việc không sử song sắt cho cửa sổ nhằm tạo kết nối mềm mại giữa không gian bên trong và bên ngoài.

Không gian mái được thiết kế sao cho phần mái sau thấp hơn hẳn so với mái trước giúp gió và ánh sáng có thể vào sâu bên trong ngôi nhà. 

Mặt bằng ba tầng 

Theo plo.vn