Biệt thự phố theo kiến trúc Á Đông
Q Villa được xây dựng trên mảnh đất diện tích 10 x 25 m với hai mặt tiền trước và sau. Giữa những căn biệt thự hiện đại xung quanh, ngôi nhà trở nên khác biệt với lối kiến trúc đậm nét Á Đông. Phong cách này là sự pha trộn đặc trưng của nhiều nền văn hóa, không có khuôn mẫu cố định mà hài hòa, linh hoạt.

Phần mái ngói được lấy ý tưởng từ các nếp mái truyền thống, kết hợp cùng lan can gỗ, cửa lá sách... tạo nên nét hoài cổ. Công trình sử dụng ngói xi măng có độ sần trên bề mặt, giúp tản nhiệt tốt cũng như giảm được áp lực khi nước xối vào mùa mưa. Sử dụng loại ngói này còn tránh được tình trạng rêu mốc, rêu xanh, ảnh hưởng tới thẩm mỹ chung.

Gam màu chủ đạo trong thiết kế nội thất theo phong cách Á Đông thường nhẹ nhàng, nhã nhặn. Bởi vậy, màu sắc đặc trưng trong nhà là màu gỗ, kết hợp cùng màu bê tông thô, giúp không gian thông thoáng và rộng rãi hơn.
Phát huy những nét đặc trưng của phong cách hiện đại, đồ nội thất trong nhà có kiểu dáng đơn giản. Mục đích chính là hướng đến công năng sử dụng cũng như mang đến cho chủ nhà cuộc sống thoải mái nhất.

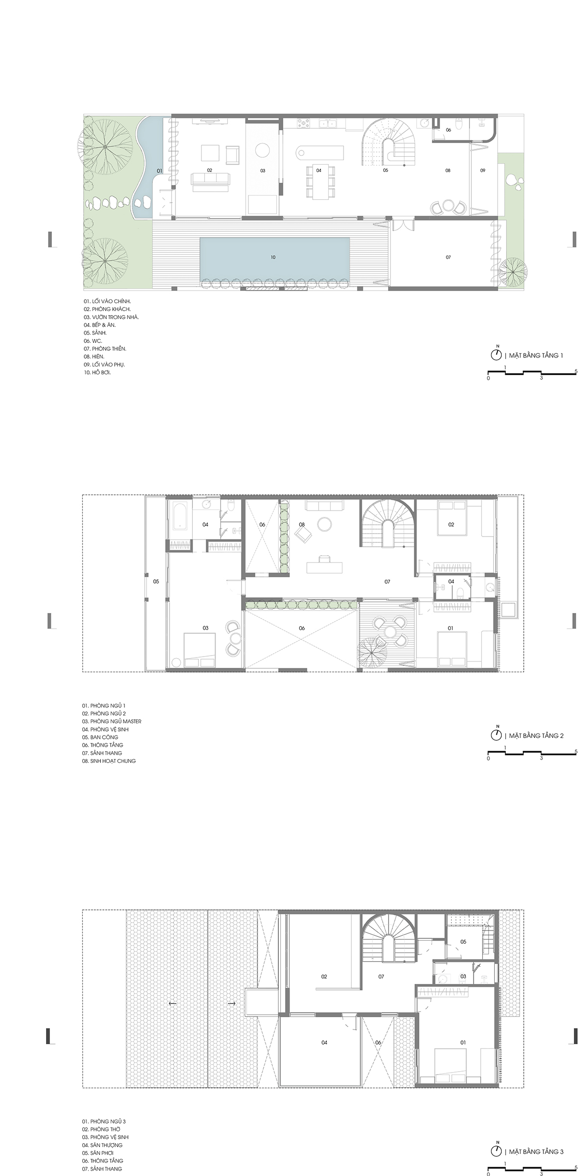
Ngôi nhà gồm một phòng ngủ master, ba phòng ngủ phụ, phòng khách bếp, hồ bơi, sân vườn... cùng khu sinh hoạt chung. Toàn bộ không gian đều thiết kế mở, góc nhìn hướng ra sân vườn nhằm kết nối cuộc sống với thiên nhiên.
Trong phong cách nội thất Á đông, gạch bông thường sử dụng lát sàn. Tại phòng bếp, loại gạch này được dùng ở không gian chính nhằm tạo điểm nhấn cũng như làm mềm không gian.

Bể bơi rộng 2,5 x 8,5 m nằm dọc nhà không chỉ là nơi thư giãn của gia đình mà góp phần tạo nên lá phổi xanh cho không gian. Từ phòng khách, phòng ăn hay phòng ngủ, mọi người đều có thể nhìn thấy mặt nước.
Tổng thể công trình là một bài toán chuyển tiếp về không gian: Bên ngoài, trung gian và bên trong. Lớp áo bao bọc phần không gian trung gian khiến cho các tác động của môi trường được kiểm soát. Nó như một mái vòm lớn che chắn an toàn và cây xanh vẫn có thể phát triển tốt bên trong. Các khối công trình được sắp xếp chồng chéo để biến ánh sáng vào nhà trở thành ánh sáng gián tiếp, cũng như thông gió tự nhiên.

Giải pháp thông tầng được áp dụng nhằm khai thác ánh sáng đến từng không gian sử dụng, đồng thời tăng cường việc đối lưu gió theo trục đứng từ tầng một lên tới tầng ba. Trần bê tông khu vực thông tầng còn được đục các lỗ thông khí, không chỉ có chức năng lấy nắng xuống hồ bơi, mà còn tạo hiệu ứng hoa nắng đẹp mắt.

Ngôi nhà mang âm hưởng kiến trúc Á Đông cùng tinh thần Phật giáo và thiền định, bởi vậy kiến trúc sư không chỉ thiết kế nhiều không gian mở, giao hòa với thiên nhiên mà còn tạo ra nét chấm phá bằng các chi tiết nhỏ.
Như tại không gian sinh hoạt chung, kiến trúc sư đã thiết kế một chiếc bàn thấp, nơi mọi người có thể thưởng trà, đọc sách... tìm sự bình yên sau những lo toan bộn bề.
Trong nhà xuất hiện khá nhiều vòng tròn trên tường, tạo cảm giác mềm mại và cân bằng thị giác. Một số vị trí sử dụng ô cửa tròn lớn, như một cách ngăn chia không gian ước lệ nhưng vẫn tạo sự kết nối. Vòng tròn còn tượng trưng cho sự vĩnh cửu vì không có sự bắt đầu hay kết thúc.

Văn hóa phương Đông thường đề cao vẻ đẹp tinh tế với việc sắp xếp đồ nội thất trật tự và đối xứng. Dù bài trí đơn giản nhưng đảm bảo mọi thứ ngăn nắp và khoa học.
Một số đồ nội thất trong nhà sử dụng gỗ óc chó kết hợp với mây - vật liệu đặc trưng trong thiết kế phong cách Á Đông. Trước khi sử dụng mây vào đồ gỗ, vật liệu này phải được tẩy trắng, ngâm dầu nhiều lần để tạo độ cứng, sau đó được sơn 3-4 lớp để bảo vệ lớp mây không bị mốc mục theo thời gian.

Hệ cửa, đồ nội thất, vật dụng trang trí… đều chế tác từ gỗ óc chó có tuổi thọ cao, khả năng chịu nhiệt, chịu lực tốt, phù hợp với khí hậu Việt Nam.

Hệ cửa gỗ lá sách được sử dụng xuyên suốt từ trong ra ngoài, từ trên xuống dưới, như một sự chuyển tiếp không gian. Hệ cửa không chỉ có tác dụng phân chia riêng tư cho từng khu vực mà có có tác dụng đối lưu không khí, mang gió, ánh sáng tự nhiên cho không gian sống. Điều này giúp ngôi nhà thân thiện với thiên nhiên, tiết kiệm năng lượng.

Nằm trong khu dân cư an ninh tốt, thay vì xây tường bao hay cổng bảo vệ vây kín, mặt tiền chính của nhà chỉ ngăn cách với không gian bên ngoài bằng bức tường thấp, kế đó là bàn trà bằng đá và hồ nước nhỏ.
Phương án này không chỉ mang thiên nhiên bên ngoài vào bên trong mà còn tạo ra không gian mở-nơi các thành viên trong gia đình nghỉ ngơi, thư giãn khi thời tiết đẹp.

Bản vẽ công trình.
Công trình hoàn thành trong một năm, chi phí không được tiết lộ.
Theo vnexpress.net
Tin cùng chuyên mục
- Kiến trúc độc đáo của cung điện gió gần 1.000 cửa sổ làm mát như điều hòa 08.04.2024 | 08:25 AM
- Nhà cấp 4 như mang cả bầu trời vào không gian nhờ cách thiết kế đơn giản 06.02.2023 | 15:06 PM
- Căn hộ Sài Gòn xóa tan cảm giác chung cư 25.04.2022 | 09:24 AM
- Chùa Bút Tháp - Kiến trúc cổ độc đáo vùng Kinh Bắc 19.07.2021 | 08:34 AM
- Độc đáo với nhà mang phong cách quán xá phố cổ Hội An 16.07.2021 | 14:56 PM
- Ngỡ ngàng với nhà mái bằng gác lửng có bể bơi trong nhà 15.07.2021 | 10:38 AM
- Căn nhà cấp 4 tuyệt đẹp với chi phí 850 triệu đồng. 15.07.2021 | 09:33 AM
- Ngôi nhà nhỏ sử dụng các vật liệu đơn giản, gần gũi tạo nên vẻ thân thiện, mộc mạc cho không gian sống. 13.07.2021 | 18:02 PM
- Độc đáo nhà gác xép bằng khung thép đặc biệt ở Đà Nẵng 13.07.2021 | 08:15 AM
- Ngẩn ngơ trước khu vườn bí mật trong ngôi nhà màu trắng ở Hải Phòng 12.07.2021 | 17:41 PM
Xem tin theo ngày
-
Đặc sắc chương trình nghệ thuật kỷ niệm 110 năm ngày sinh Tổng Bí thư Nguyễn Văn Linh và chào mừng hợp nhất tỉnh Hưng Yên và tỉnh Thái Bình
- Chủ tịch Ủy ban Trung ương MTTQ Việt Nam Đỗ Văn Chiến thăm làm việc tại phường Phố Hiến
- Công bố nghị quyết, quyết định của Trung ương, địa phương về sáp nhập đơn vị hành chính cấp tỉnh, cấp xã và kết thúc hoạt động cấp huyện
- Báo Thái Bình - Một hành trình với những mốc son lịch sử
- Thư tòa soạn
- Công bố quyết định của Bộ trưởng Bộ Công an, Giám đốc Công an tỉnh về công tác tổ chức, cán bộ
- Khởi công dự án nhà máy đốt chất thải rắn phát điện công nghệ hiện đại tại xã Thụy Trình
- Khởi công dự án đầu tư xây dựng sân golf Cồn Vành và dự án đầu tư xây dựng khu bến cảng hàng lỏng Ba Lạt
- Việt Nam nâng tầm vị thế tại Hội nghị quốc tế về biển và đại dương
- Hội thảo khoa học: Đồng chí Nguyễn Văn Linh – Nhà lãnh đạo kiên định, sáng tạo của Đảng và cách mạng Việt Nam