Thứ 4, 25/03/2026, 21:41[GMT+7]

Mê tít ngôi nhà ở Sơn La có không gian thoáng đãng tuyệt đối

Thứ 3, 29/11/2022 | 10:59:27
1,644 lượt xem
Ngôi nhà ở Sơn La được thiết kế thoáng hết cỡ để phù hợp không gian vừa cho gia đình sinh sống vừa để kinh doanh.

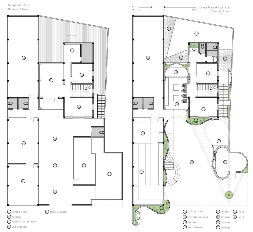
QBY House có diện tích 600 m2 tại tỉnh Sơn La.

Ngôi nhà được cải tạo từ một ngôi nhà cũ kết hợp với một nhà hàng nhỏ. 

Không gian cũ của ngôi nhà là nơi ở xen lẫn kinh doanh gây nhiều bất tiện cho cuộc sống gia đình. 

Mục đích của kiến trúc sư Trung Tran Studio là muốn cải tạo ngôi nhà nhằm tạo không gian riêng biệt. 

Qua đó, công trình sẽ đảm bảo việc kinh doanh cũng như môi trường sống cho các thành viên trong gia đình có nhiều thế hệ và đông con. 

Không gian sinh hoạt của gia đình đã được đưa xuống dưới (tầng bán âm), nơi mọi người có thể nhìn thấy cánh đồng lúa. 

Phần trên dành cho khu vực nhà ăn với các không gian chức năng như bãi để xe, khu bếp ăn, bếp củi phục vụ các món ăn dân tộc.  

Sân trên dành cho khu vực nhà hàng và sân dưới dành cho khu vực sinh hoạt được tổ chức để phù hợp với các chức năng khác nhau. 

Phần mái nhà phòng hội trường được đặt chéo 45 độ, đan xen với mái ngói của ngôi nhà cũ. 

Tất cả các phòng chức năng đều đảm bảo được ánh sáng, tầm nhìn ra các khoảng sân lớn nhỏ. 

Cầu thang cũ nối trực tiếp từ sân trong lên, tạo thành lối đi riêng lên tầng trên. 

Dù ở không gian nào đều có nắng, có gió và sự riêng tư. 

Màu đỏ của ngói mới và cũ hòa quyện tạo nên nét đặc biệt nhưng hài hòa. 

Các phòng chức năng của nhà hàng được phân bổ ở tầng một là các phòng khép kín và tầng hai là sảnh lớn. 

Kiến trúc sư tận dụng những vật liệu cũ sẵn có tại địa phương và một phần của ngôi nhà cũ. 

Vật liệu được sử dụng khiến việc xây dựng trở nên đơn giản và phù hợp hơn với người dân địa phương. 

Ngôi nhà là sự tiếp nối của cánh đồng lúa để tạo không gian xanh. 

Theo plo.vn