Thứ 4, 25/03/2026, 21:47[GMT+7]

Ngôi nhà bọc kính giữa đồi cây

Thứ 2, 28/11/2022 | 10:53:51
1,478 lượt xem
Cây xanh bao bọc và che phủ xung quanh khiến ngôi nhà toàn kính như nằm giữa một khu rừng nhỏ.

Ngôi nhà hai tầng một lửng với diện tích 352 m2 nằm trên một sườn đồi ở phía tây TP Huế. Khu vực xây dựng có địa thế thoải dần về phía trước, bao quanh là những khu vườn xanh mát. Nhóm kiến trúc sư đã lên ý tưởng về một ngôi nhà hiện đại với tầm nhìn thông thoáng, để hưởng trọn màu xanh cây cỏ và khí trời trong lành bên ngoài.

Ngôi nhà nằm tại vị trí cao nhất của khu đất và mở tầm nhìn cảnh quan ra phía chân đồi. Ý tưởng của kiến trúc sư là tạo ranh giới không rõ ràng mà ở đó con người cởi mở với thiên nhiên và thiên nhiên cũng tác động lại con người một cách cân bằng nhất.

Tầng hầm được mở ra bằng một lối đi được cắt dọc vào khu đất giúp các phương tiện giao thông có thể đi vào giữa công trình. Hai bên là lối đi bộ men theo triền dốc vào sảnh chính và sân BBQ.

Tầng một và tầng hai công trình gồm hai khối hộp xếp chồng lên nhau với nhiều khoảng trống đan xen giúp thông gió và lấy sáng. Không gian trong nhà được thiết kế với hướng mở tối đa ra bên ngoài để tận hưởng toàn bộ bối cảnh xung quanh.

Việc sử dụng vật liệu kính bao quanh nhà góp phần làm tăng tính kết nối của người sử dụng bên trong đối với các yếu tố tự nhiên và ngược lại. Các thành viên trong gia đình có thể dễ dàng tương tác với nhau khi ở các không gian khác nhau.

Tầng lửng của công trình được hình thành từ sự chênh cao độ giữa tầng hầm và tầng một. Không gian này là một khoảng trống để làm sân chơi cũng như liên kết tầm nhìn từ dưới chân đồi vào trong nhà và ngược lại.

Tất cả các không gian của công trình đều thiết kế như những căn phòng không góc. Phần góc nhà đều là các tấm kính lớn hai mặt, mở rộng không gian kéo dài ra bên ngoài, khiến cho căn nhà như một phần của tự nhiên.

Khối tầng hai được mở rộng ra phía trên tầng lửng và tầng một giúp kiểm soát được các góc nắng và tạo vùng bóng râm cho khối phía dưới.

Vùng bóng râm giữa tầng hai và tầng lửng như một khoảng đệm không khí giúp thông gió và làm mát công trình.

Ngôi nhà dành một nửa diện tích cho khoảng không gian thông thoáng, giúp con người tiếp cận với thiên nhiên, và một nửa không gian còn lại dành cho nhu cầu thiết yếu của gia đình.

Các không gian được kết nối bằng một chuỗi liên kết giữa cầu thang, hành lang, sân trong từ tầng một lên tầng hai, bao quanh lõi thông tầng nằm ở trung tâm nhà. Khoảng thông tầng lớn tạo đối lưu không khí làm mát và mở rộng góc nhìn từ trong nhà ra phía chân đồi.

Ngôi nhà được làm bằng kết cấu khung thép với lớp vỏ gồm: lớp cây dây leo phủ xanh mặt tiền, lớp vỏ bê tông nhẹ lắp ghép và lớp cửa nhôm kính.

Những tấm kính bọc bên ngoài cho phép người trong nhà tiếp cận thiên nhiên dễ dàng, đồng thời không bị ảnh hưởng quá nhiều bởi sự ồn ã bên ngoài do cách âm tốt.

Để đảm bảo sự thoáng đãng, nội thất của nhà được thiết kế tối giản với màu chủ đạo là màu gỗ. Do hạn chế màu sắc, ánh sáng được xem như một thành phần trang trí nhằm tạo ra các hiệu ứng thị giác và thẩm mỹ, đồng thời đem tới cảm giác thư thái cho gia chủ.

Có thể nhìn xuyên thấu từ phòng này sang phòng khác, khung cảnh rợp bóng cây xanh và ánh nắng xuyên qua, ngôi nhà như hòa làm một với không gian sống bên ngoài.

Những cửa sổ kính kéo dài từ sàn đến trần cho phép ánh sáng tự nhiên tràn vào không gian nội thất, khiến người sống trong nhà như được bao bọc bởi thiên nhiên xanh mát. 

Hành lang với mặt tiền được phủ bởi dây leo dọc theo mái che giúp tiết chế nắng gắt hiệu quả. Mặt tiền xanh cũng tạo sự riêng tư cho không gian bên trong, có tác dụng lọc ánh sáng và làm giảm bức xạ nhiệt mặt trời từ hướng Tây. 

Mỗi khu vực trong nhà đều được tính toán cẩn thận sao cho cân bằng giữa ánh sáng tự nhiên và không gian riêng tư. Giường ngủ của em bé được đặt ở vị trí với lượng ánh sáng ít hơn không gian khác. 

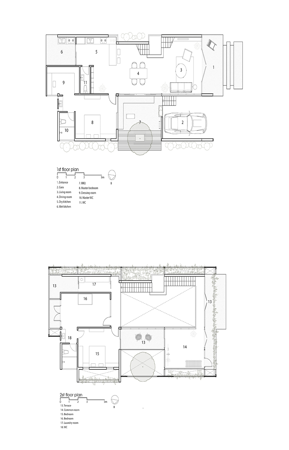
Bản vẽ công trình.

Ngôi nhà hoàn thành năm 2021, chi phí không được tiết lộ.

Theo vnexpress.net