Nhà ba vòm giống hầm trú ẩn
Nhà ba vòm giống hầm trú ẩn

Ngôi nhà rộng 78 m2 ở phố Ngọc Hà, quận Ba Đình với mặt tiền hướng về phía hồ Hữu Tiệp - nơi có xác máy bay B52 bị bắn rơi năm 1972. Đây vốn là căn nhà cũ thiếu ánh sáng, cầu thang co cụm, cửa sổ nhỏ tối tăm, các tầng không có sự liên thông và tách rời nhau.
Gia chủ là một người cá tính, nhiều trải nghiệm nên yêu cầu kiến trúc sư cải tạo thành một ngôi nhà hướng nội, là nơi nghỉ dưỡng nhẹ nhàng nhưng sinh động. Đồng thời mọi không gian cần giữ được hơi thở thâm trầm vốn có của nhà cũ.

Từ yêu cầu này, phong cách chủ đạo mà kiến trúc sư hướng tới là sự hiện đại, làm nổi bật nét thô mộc của vật liệu cũng như gần gũi thiên nhiên.
Dấu ấn chính của công trình là ba vòm không gian lớn xuyên suốt ba tầng nhìn trọn ra hồ. Từ ngoài nhìn vào, ngôi nhà khiến mọi người liên tưởng đến hình ảnh căn hầm trú ẩn bên hồ Hữu Tiệp, thời kỳ chống chiến tranh phá hoại của không quân Mỹ.
Thiết kế vòm còn tạo cảm giác không có ranh giới xác định giữa tường và trần nhà, làm cho không gian như được xuyên suốt và mở rộng hơn.

Vì gia chủ không có nhu cầu để xe nên ngay từ cổng bước vào là một khu vườn rộng 15 m2 với điểm nhấn là một cây đại lớn kết hợp với những loại cây ưa mát. Toàn bộ khu vườn được rải sỏi đen tự nhiên như bước qua một bờ suối cạn. Mặt tiền tầng một được lắp cửa kính cỡ lớn, trong suốt nhìn ra hồ.

Phòng ngủ cho khách được bố trí tại tầng một kết hợp bàn bi-a là không gian vui chơi cho gia đình, bạn bè. Hai giếng trời được bố trí ở sân sau và khu vực cầu thang, kết hợp với khu vườn phía trước giúp công trình đủ ánh sáng và gió trời.

Để kết nối không gian giữa tầng một và tầng hai, kiến trúc sư đã thiết kế khoảng thông tầng lên thẳng phòng khách, tại đó được bố trí thêm chiếc võng lưới vừa tăng tính giải trí, vừa tăng tính thẩm mỹ cho ngôi nhà.
Chiếc võng được bện hai lớp, chịu được 500 kg. Không chỉ tạo thẩm mỹ, chiếc võng lưới còn có công dụng lấy sáng cho khu vực giữa tầng một. Đây cũng nơi trung chuyển gió mát, khí trời, là nơi giao lưu của mọi người dù đứng ở hai tầng khác nhau.

Tầng hai mở hướng toàn bộ ra phía trước, nhìn ra hồ. Nhóm kiến trúc sư đã tạo sự kết nối giữa ba không gian vốn tách biệt là nhà ăn, phòng khách, nhà bếp trong cùng một căn phòng duy nhất mà không bị lệch tông.
Việc tích hợp phòng khách, chỗ ăn uống và bếp trong một phòng chung tạo sự liền mạch trong sinh hoạt để chủ nhân tận hưởng không gian sống thoải mái, dù diện tích căn hộ khá khiêm tốn.

Khu vực tầng hai giống như một sân chơi gia đình với không gian mở, nơi các thành viên có thể giao tiếp trong lúc đọc sách, chơi xích đu, ăn uống hay chuẩn bị bữa tối.

Đảo bếp như một điểm nhấn giữa không gian sinh hoạt chung khi sử dụng đá mài granito kết hợp với bàn ăn bằng gỗ xẻ tự nhiên. Cách thiết kế này vừa tiết kiệm không gian, giúp gia chủ dễ dàng di chuyển mà không lo vướng víu.
Cầu thang được thiết kế mặt bậc bằng những khúc gỗ xẻ nửa găm vào tường với các bậc thông thoáng, tạo điều kiện cho sự lưu thông không khí và ánh sáng trong nhà.

Hướng tới phong cách hiện đại nên nội thất trong nhà không sử dụng hoa văn rườm rà, thay vào đó là sự tối giản, tinh tế.
Đồ nội thất theo phong cách này được bố trí theo hướng tự do không gò bó. Màu sắc sử dụng là những tông màu trung tính, tập trung nhiều vào tận dụng ánh sáng cho không gian.

Đá xẻ hai phân tự nhiên được kiến trúc sư dùng ốp tường. Việc sử dụng đá ốp không chỉ tăng tính thẩm mỹ mà màu sắc của vật liệu gần như không thay đổi theo thời gian. Ưu điểm này thể hiện rõ ý đồ của kiến trúc sư là hướng tới những gì tự nhiên nhất.

Để giữ được vẻ thâm trầm vốn có của nhà cũ, kiến trúc sư đã sử dụng những vật liệu truyền thống như cửa chớp, mái ngói đỏ... làm cửa chính, cửa sổ, mái hiên cho công trình.

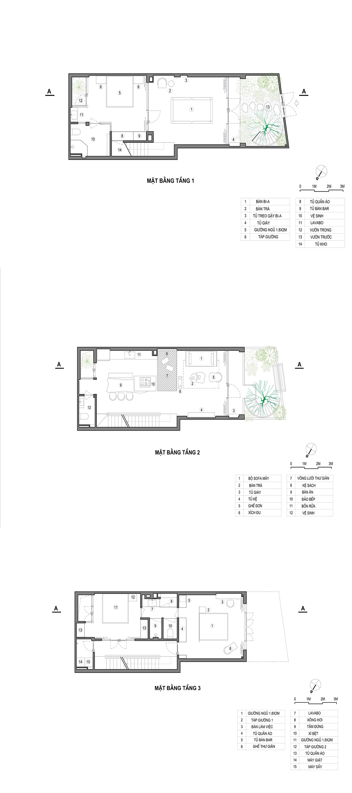
Bản vẽ công trình
Tổng thời gian cải tạo là 6 tháng, chi phí không được tiết lộ.
Theo vnexpress.net
Tin cùng chuyên mục
- Kiến trúc độc đáo của cung điện gió gần 1.000 cửa sổ làm mát như điều hòa 08.04.2024 | 08:25 AM
- Nhà cấp 4 như mang cả bầu trời vào không gian nhờ cách thiết kế đơn giản 06.02.2023 | 15:06 PM
- Căn hộ Sài Gòn xóa tan cảm giác chung cư 25.04.2022 | 09:24 AM
- Chùa Bút Tháp - Kiến trúc cổ độc đáo vùng Kinh Bắc 19.07.2021 | 08:34 AM
- Độc đáo với nhà mang phong cách quán xá phố cổ Hội An 16.07.2021 | 14:56 PM
- Ngỡ ngàng với nhà mái bằng gác lửng có bể bơi trong nhà 15.07.2021 | 10:38 AM
- Căn nhà cấp 4 tuyệt đẹp với chi phí 850 triệu đồng. 15.07.2021 | 09:33 AM
- Ngôi nhà nhỏ sử dụng các vật liệu đơn giản, gần gũi tạo nên vẻ thân thiện, mộc mạc cho không gian sống. 13.07.2021 | 18:02 PM
- Độc đáo nhà gác xép bằng khung thép đặc biệt ở Đà Nẵng 13.07.2021 | 08:15 AM
- Ngẩn ngơ trước khu vườn bí mật trong ngôi nhà màu trắng ở Hải Phòng 12.07.2021 | 17:41 PM
Xem tin theo ngày
-
Đặc sắc chương trình nghệ thuật kỷ niệm 110 năm ngày sinh Tổng Bí thư Nguyễn Văn Linh và chào mừng hợp nhất tỉnh Hưng Yên và tỉnh Thái Bình
- Chủ tịch Ủy ban Trung ương MTTQ Việt Nam Đỗ Văn Chiến thăm làm việc tại phường Phố Hiến
- Công bố nghị quyết, quyết định của Trung ương, địa phương về sáp nhập đơn vị hành chính cấp tỉnh, cấp xã và kết thúc hoạt động cấp huyện
- Báo Thái Bình - Một hành trình với những mốc son lịch sử
- Thư tòa soạn
- Công bố quyết định của Bộ trưởng Bộ Công an, Giám đốc Công an tỉnh về công tác tổ chức, cán bộ
- Khởi công dự án nhà máy đốt chất thải rắn phát điện công nghệ hiện đại tại xã Thụy Trình
- Khởi công dự án đầu tư xây dựng sân golf Cồn Vành và dự án đầu tư xây dựng khu bến cảng hàng lỏng Ba Lạt
- Việt Nam nâng tầm vị thế tại Hội nghị quốc tế về biển và đại dương
- Hội thảo khoa học: Đồng chí Nguyễn Văn Linh – Nhà lãnh đạo kiên định, sáng tạo của Đảng và cách mạng Việt Nam