Thứ 5, 26/03/2026, 04:05[GMT+7]

Thiết kế nhiều cửa sổ, ngôi nhà như chiếc đèn lồng

Thứ 6, 07/10/2022 | 15:20:48
1,960 lượt xem
Ngôi nhà tựa như chiếc đèn lồng khổng lồ bởi thiết kế nhiều ô cửa sổ có hoa văn xung quanh nhà.

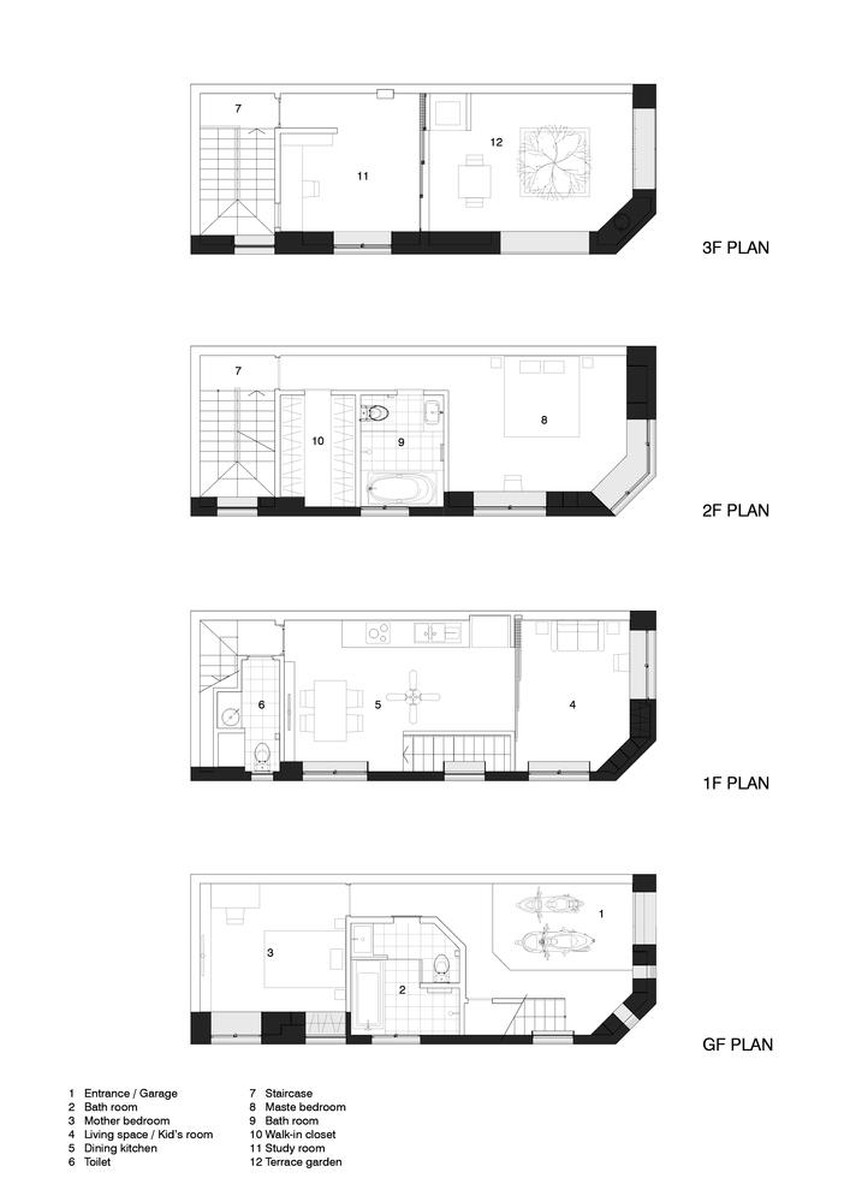
HEM house nằm ở góc của một con hẻm với chiều rộng chỉ 2,1 m và 1,7 m tại quận 1, TP.HCM.

Kiến trúc sư của SANUKI DAISUKE architects thiết kế ngôi nhà có hình dáng đơn giản. Diện tích được tận dụng tối đa và có nhiều ô cửa mở ra phía ngoài. Kiến trúc sư đã bố trí các lưới thép có hoa văn cho mỗi ô cửa. 

Mặc dù bên ngoài ngôi nhà mang cảm giác đóng kín, không gian bên trong lại rất sáng nhờ ánh sáng tự nhiên phản chiếu. Nhiều ô hở có độ sâu từ 50 cm – 80 cm được trang bị đồ nội thất và kệ. 

Kiến trúc sư thiết kế nhiều góc nhìn ra hẻm từ các ô hở để trở thành một phần của không gian nội thất trong ngôi nhà này. 

Ngôi nhà có độ cao trần khác nhau ở mỗi tầng khiến không gian rộng rãi nhất có thể. 

Bếp thiết kế gọn gàng, đầy đủ tiện nghi. 

KTS cũng sử dụng các vật liệu truyền thống, trong đó bức tường bên ngoài được hoàn thiện bằng gạch terrazzo còn tường bên trong được trát xi măng. 

Chiếc cầu thang màu trắng nổi bật giữa không gian bên trong nhà. 

Các không gian trống giữa cầu thang được tận dụng làm kệ. 

Tầng trên cùng kiến trúc sư thiết kế loại kính sáng trên mái còn bên dưới trồng cây tạo bóng mát. 

Đây là nơi gia đình thư giãn, góc này được trồng nhiều cây xanh lớn, nhỏ khác nhau. 

Mục tiêu thiết kế của kiến trúc sư là làm thế nào để tạo nên một ngôi nhà thú vị trong hẻm. 

Theo plo.vn