Không gian 'biến ảo' trong căn hộ 65 mét vuông
Căn hộ hai phòng ngủ, diện tích 65 m2 ở quận 3 của một nam gia chủ độc thân, mong muốn không gian sống hiện đại, thoáng đãng và linh hoạt đáp ứng các nhu cầu nghỉ ngơi, làm việc, giải trí.

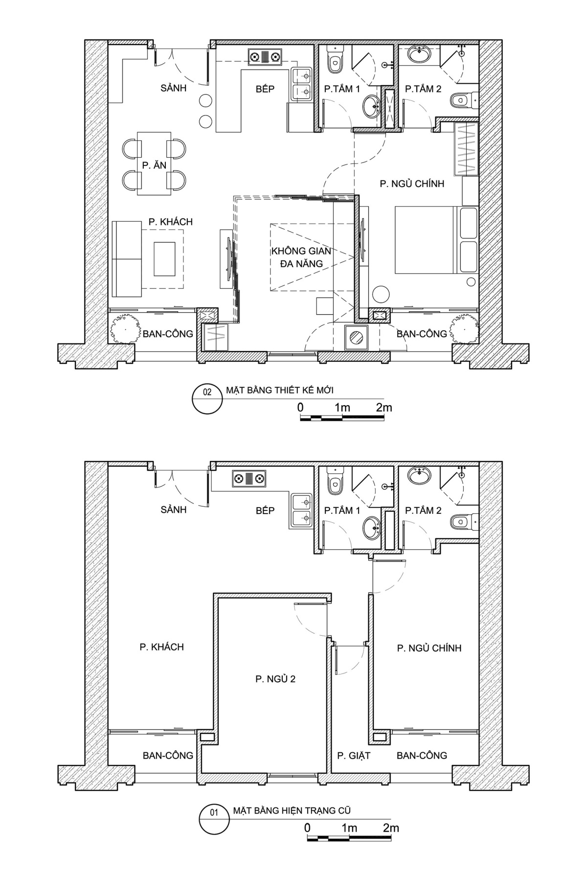
Ban đầu, không gian bị chia nhỏ thành nhiều phòng, dẫn đến cảm giác chật chội. Bếp cũng thiếu sáng và tầm nhìn ra ngoài. Các kiến trúc sư đề xuất tháo dỡ toàn bộ tường cố định, mở rộng phòng ngủ chính và phòng khách.

Điểm đặc biệt nhất của căn hộ là phòng đa năng giữa phòng ngủ chính và phòng khách. Nó được bố trí vách cửa kính, dễ dàng đóng mở tùy nhu cầu của gia chủ.

Khi mở toang, phòng đa năng kết nối với phòng khách và bếp – phòng ăn, có thể làm chỗ tổ chức tiệc, giải trí hay rạp phim tại gia. Ánh sáng từ các cửa sổ và ban công bên ngoài cũng giúp lấy sáng và lưu thông không khí cho bếp và hành lang bên trong.

Khi hệ vách kính được đóng lại, phòng đa năng này sẽ trở thành phòng làm việc hoặc phòng ngủ cho khách hoặc người thân của gia chủ. Hệ tủ âm tường ngăn phòng đa năng với phòng ngủ chính tích hợp giường gấp thông minh, máy lạnh, tủ quần áo, tủ kho, kệ sách, bàn làm việc và máy giặt giúp tối ưu hoá không gian và chức năng sử dụng.
Theo kiến trúc sư Tạ Vĩnh Phúc, chủ trì công trình, phòng đa năng này phù hợp với cả nhà phố lẫn căn hộ. Nó vừa dễ dàng thay đổi chức năng khi cần thiết, vừa có thể mở rộng các phòng sẵn có như phòng khách, phòng ăn, sinh hoạt chung. Hệ tủ tích hợp giường như căn hộ này sử dụng cũng không quá tốn kém, nếu làm bằng vật liệu gỗ công nghiệp thông dụng thì chi phí khoảng 40 triệu đồng.

Nằm cạnh phòng đa năng, phòng ngủ chính có lô gia, cũng là chỗ phơi đồ. Chỗ đặt máy giặt và mấy sấy được thiết kế hai cửa mở ra hai hướng (phòng đa năng và lô gia) nên kể cả khi nhà có khách, gia chủ vẫn thoải mái giặt giũ, phơi đồ.

Về nội thất, căn hộ ưu tiên những món đồ gọn nhẹ, dễ di chuyển. Ví dụ như kệ tivi có bánh xe. Trần và tường xi măng, sàn gỗ màu xám, các tủ quần áo bằng sắt và kính kết hợp với ghế bọc da, đá marble đen tạo nên một không gian sống phù hợp với cá tính và phong cách của gia chủ.
Theo vnexpress.net
Tin cùng chuyên mục
- Kiến trúc độc đáo của cung điện gió gần 1.000 cửa sổ làm mát như điều hòa 08.04.2024 | 08:25 AM
- Nhà cấp 4 như mang cả bầu trời vào không gian nhờ cách thiết kế đơn giản 06.02.2023 | 15:06 PM
- Căn hộ Sài Gòn xóa tan cảm giác chung cư 25.04.2022 | 09:24 AM
- Chùa Bút Tháp - Kiến trúc cổ độc đáo vùng Kinh Bắc 19.07.2021 | 08:34 AM
- Độc đáo với nhà mang phong cách quán xá phố cổ Hội An 16.07.2021 | 14:56 PM
- Ngỡ ngàng với nhà mái bằng gác lửng có bể bơi trong nhà 15.07.2021 | 10:38 AM
- Căn nhà cấp 4 tuyệt đẹp với chi phí 850 triệu đồng. 15.07.2021 | 09:33 AM
- Ngôi nhà nhỏ sử dụng các vật liệu đơn giản, gần gũi tạo nên vẻ thân thiện, mộc mạc cho không gian sống. 13.07.2021 | 18:02 PM
- Độc đáo nhà gác xép bằng khung thép đặc biệt ở Đà Nẵng 13.07.2021 | 08:15 AM
- Ngẩn ngơ trước khu vườn bí mật trong ngôi nhà màu trắng ở Hải Phòng 12.07.2021 | 17:41 PM
Xem tin theo ngày
-
Đặc sắc chương trình nghệ thuật kỷ niệm 110 năm ngày sinh Tổng Bí thư Nguyễn Văn Linh và chào mừng hợp nhất tỉnh Hưng Yên và tỉnh Thái Bình
- Chủ tịch Ủy ban Trung ương MTTQ Việt Nam Đỗ Văn Chiến thăm làm việc tại phường Phố Hiến
- Công bố nghị quyết, quyết định của Trung ương, địa phương về sáp nhập đơn vị hành chính cấp tỉnh, cấp xã và kết thúc hoạt động cấp huyện
- Báo Thái Bình - Một hành trình với những mốc son lịch sử
- Thư tòa soạn
- Công bố quyết định của Bộ trưởng Bộ Công an, Giám đốc Công an tỉnh về công tác tổ chức, cán bộ
- Khởi công dự án nhà máy đốt chất thải rắn phát điện công nghệ hiện đại tại xã Thụy Trình
- Khởi công dự án đầu tư xây dựng sân golf Cồn Vành và dự án đầu tư xây dựng khu bến cảng hàng lỏng Ba Lạt
- Việt Nam nâng tầm vị thế tại Hội nghị quốc tế về biển và đại dương
- Hội thảo khoa học: Đồng chí Nguyễn Văn Linh – Nhà lãnh đạo kiên định, sáng tạo của Đảng và cách mạng Việt Nam