Đưa sân vào giữa nhà
Chủ nhân căn nhà cách trung tâm thành phố Bến Tre khoảng 10 km là đôi vợ chồng trẻ với hai cậu con trai nhỏ. Sau những giờ làm việc căng thẳng, họ muốn trở về không gian ấm áp và yên tĩnh, có thể nhìn ngắm cây xanh, ánh nắng, mây trời và cảm nhận làn gió mát mỗi buổi chiều.

Đặc biệt, hai vợ chồng muốn tận dụng khoảng thời gian ít ỏi buổi chiều tối để trò chuyện, chơi đùa và học cùng các con. Vì thế, khi chọn giải pháp bố cục không gian, kiến trúc sư đã ưu tiên tính kết nối.

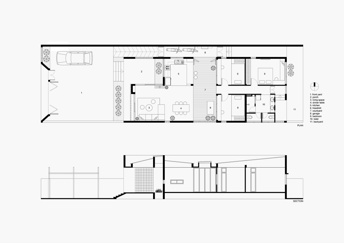
Căn nhà rộng 170 m2, mặt tiền hướng Tây, xây một tầng. Cửa chính quay về hướng Bắc, phía trước có sảnh đệm lớn nhằm tránh ánh nắng trực tiếp. Sảnh này cũng là khoảng thư giãn của gia chủ vào mỗi buổi chiều tối.

Hệ thống thông gió tự nhiên gồm lớp gạch thông gió và lớp cửa kính lùa xuyên suốt công trình. Giải pháp này tránh nắng gắt, đảm bảo sự thông thoáng và sự kín đáo cần thiết cho gia đình.

Bên trong, không gian chia làm khu vực sinh hoạt chung và khu vực nghỉ ngơi.

Không gian liên thông, tiết chế vách ngăn để đem tới cảm giác rộng rãi, cởi mở.

Khu vực sinh hoạt chung và khu vực nghỉ ngơi ngăn cách nhau bằng khoảng sân giữa nhà.

Khoảng sân giữa nhà có chức năng linh hoạt. Nó vừa là nơi thư giãn, tập thể dục, vui chơi vừa là góc làm việc, nhờ đó tăng cường sự kết nối giữa bố mẹ và con cái.

Phòng ngủ của hai trẻ em được bố trí hệ cửa sổ kính hướng ra sân.

Nhờ đó, dù ở không gian nào, bố mẹ vẫn dễ dàng quan sát, trò chuyện và chơi đùa với con cái.

Để các thành viên gia đình thêm thư thái khi ở nhà, các phòng đều nhìn ra hướng có cây xanh.

Mảng xanh kết hợp với gạch thông gió bằng đất nung và nền sơn trắng tạo nên không gian hiện đại pha chất thô mộc hòa lẫn với thiên nhiên.
Theo vnexpress.net
Tin cùng chuyên mục
- Kiến trúc độc đáo của cung điện gió gần 1.000 cửa sổ làm mát như điều hòa 08.04.2024 | 08:25 AM
- Nhà cấp 4 như mang cả bầu trời vào không gian nhờ cách thiết kế đơn giản 06.02.2023 | 15:06 PM
- Căn hộ Sài Gòn xóa tan cảm giác chung cư 25.04.2022 | 09:24 AM
- Chùa Bút Tháp - Kiến trúc cổ độc đáo vùng Kinh Bắc 19.07.2021 | 08:34 AM
- Độc đáo với nhà mang phong cách quán xá phố cổ Hội An 16.07.2021 | 14:56 PM
- Ngỡ ngàng với nhà mái bằng gác lửng có bể bơi trong nhà 15.07.2021 | 10:38 AM
- Căn nhà cấp 4 tuyệt đẹp với chi phí 850 triệu đồng. 15.07.2021 | 09:33 AM
- Ngôi nhà nhỏ sử dụng các vật liệu đơn giản, gần gũi tạo nên vẻ thân thiện, mộc mạc cho không gian sống. 13.07.2021 | 18:02 PM
- Độc đáo nhà gác xép bằng khung thép đặc biệt ở Đà Nẵng 13.07.2021 | 08:15 AM
- Ngẩn ngơ trước khu vườn bí mật trong ngôi nhà màu trắng ở Hải Phòng 12.07.2021 | 17:41 PM
Xem tin theo ngày
-
Đặc sắc chương trình nghệ thuật kỷ niệm 110 năm ngày sinh Tổng Bí thư Nguyễn Văn Linh và chào mừng hợp nhất tỉnh Hưng Yên và tỉnh Thái Bình
- Chủ tịch Ủy ban Trung ương MTTQ Việt Nam Đỗ Văn Chiến thăm làm việc tại phường Phố Hiến
- Công bố nghị quyết, quyết định của Trung ương, địa phương về sáp nhập đơn vị hành chính cấp tỉnh, cấp xã và kết thúc hoạt động cấp huyện
- Báo Thái Bình - Một hành trình với những mốc son lịch sử
- Thư tòa soạn
- Công bố quyết định của Bộ trưởng Bộ Công an, Giám đốc Công an tỉnh về công tác tổ chức, cán bộ
- Khởi công dự án nhà máy đốt chất thải rắn phát điện công nghệ hiện đại tại xã Thụy Trình
- Khởi công dự án đầu tư xây dựng sân golf Cồn Vành và dự án đầu tư xây dựng khu bến cảng hàng lỏng Ba Lạt
- Việt Nam nâng tầm vị thế tại Hội nghị quốc tế về biển và đại dương
- Hội thảo khoa học: Đồng chí Nguyễn Văn Linh – Nhà lãnh đạo kiên định, sáng tạo của Đảng và cách mạng Việt Nam