Thiết kế căn nhà 7x20m ở quê với chi phí 200 triệu đồng
Phòng khách rộng rãi và có sự liên thông với không gian phòng ăn và bếp.
Diện tích không quá nhỏ như những căn nhà ống xô bồ nơi phố thị, cũng không hẳn là căn nhà một mặt sàn của chung cư đông đúc, mong muốn của gia chủ là một căn nhà có gác lửng đủ 4 phòng ngủ cho 2 thế hệ: Hai vợ chồng và 3 người con nơi làng quê yên bình.

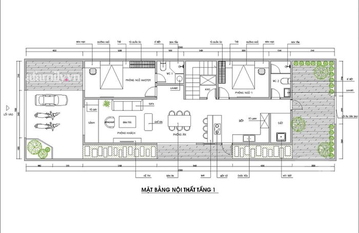
Mặt bằng nội thất tầng 1.

Mặt bằng nội thất tầng lửng
Mặt bằng tầng 1 cho thấy sự phân bổ vị trí khá thông minh của kiến trúc sư, do chiều sâu lớn nên việc tách đôi 4 phòng ngủ cho 2 tầng trở nên hợp lý.
Phòng khách kết hợp phòng ăn và bếp sâu về phía bên trong, màu sắc nhã nhặn, kết hợp chất liệu gỗ sồi trong đồ nội thất như bàn ăn, tủ bếp, bàn tiếp khách, cầu thang và đá ốp đen trắng của Ý khiến căn phòng vừa ấm áp, vừa sang trọng.
Phòng khách liên thông phòng bếp và bàn ăn tưởng chừng như không gian bị thu hẹp nhưng cửa kính sát mặt sàn nhìn ra sân vườn lại là nước đi khá hay không thể phủ nhận khiến không gian vừa rộng rãi, vừa ngập tràn ánh nắng tự nhiên.

Tủ bếp đầy đủ công năng và tiện lợi.

Tủ bếp có kết hợp quầy bar mang tới sự sang trọng cho căn nhà.
Sàn nhà được ốp đá họa tiết xám trắng đi cùng thảm hợp tone màu của căn phòng nên không để căn phòng bị rối, vật dụng và tranh treo tường cũng được KTS tối giản để không gian không trở nên quá bí bức.

Phòng ngủ master với thiết kế hiện đại, mở lối đi dẫn thẳng ra sân trước nhà.
Phòng ngủ Master và phòng ngủ con trai lớn thể hiện sự cá tính, tone màu thiên lạnh (xám, trắng, xanh) và sự kết hợp ăn ý với nội thất vừa đủ để tôn lên mắt thẩm mỹ của chủ nhà.

Phòng ngủ con trai lớn mang màu sắc tối, thiết kế đơn giản nhưng vẫn tạo ra nét độc đáo riêng.

Góc nhìn từ gác lửng xuống tầng 1.
Phòng ngủ của con gái và con trai nhỏ lại tinh nghịch và pha chút dễ thương. Tone pastel nhẹ nhàng, hay như phòng của con trai nhỏ thiết kế theo kiểu giường tầng cũng cho thấy sự chăm chút đến từng chi tiết của chủ nhà, tối ưu sự thoải mái trong từng ngóc ngách nhỏ của căn hộ.

Phòng ngủ con trai bé được thiết kế một cách sáng tạo.

Phòng ngủ con gái nhỏ sử dụng tone màu hồng nữ tính và đáng yêu.

Nhà vệ sinh chung của căn nhà đơn giản và tiện lợi.
Sân vườn ốp gỗ nhựa được trang trí với bàn và sofa dài màu xanh trắng cũng là điểm nhấn của căn nhà, thích hợp cho một buổi sáng thảnh thơi nhâm nhi tách trà xanh nóng cùng quyển sách đang đọc dở.

Sân vườn rộng rãi tràn ngập cây xanh mang lại sinh khí cho căn nhà.
Theo toquoc.vn
Tin cùng chuyên mục
- Kiến trúc độc đáo của cung điện gió gần 1.000 cửa sổ làm mát như điều hòa 08.04.2024 | 08:25 AM
- Nhà cấp 4 như mang cả bầu trời vào không gian nhờ cách thiết kế đơn giản 06.02.2023 | 15:06 PM
- Căn hộ Sài Gòn xóa tan cảm giác chung cư 25.04.2022 | 09:24 AM
- Chùa Bút Tháp - Kiến trúc cổ độc đáo vùng Kinh Bắc 19.07.2021 | 08:34 AM
- Độc đáo với nhà mang phong cách quán xá phố cổ Hội An 16.07.2021 | 14:56 PM
- Ngỡ ngàng với nhà mái bằng gác lửng có bể bơi trong nhà 15.07.2021 | 10:38 AM
- Căn nhà cấp 4 tuyệt đẹp với chi phí 850 triệu đồng. 15.07.2021 | 09:33 AM
- Ngôi nhà nhỏ sử dụng các vật liệu đơn giản, gần gũi tạo nên vẻ thân thiện, mộc mạc cho không gian sống. 13.07.2021 | 18:02 PM
- Độc đáo nhà gác xép bằng khung thép đặc biệt ở Đà Nẵng 13.07.2021 | 08:15 AM
- Ngẩn ngơ trước khu vườn bí mật trong ngôi nhà màu trắng ở Hải Phòng 12.07.2021 | 17:41 PM
Xem tin theo ngày
-
Đặc sắc chương trình nghệ thuật kỷ niệm 110 năm ngày sinh Tổng Bí thư Nguyễn Văn Linh và chào mừng hợp nhất tỉnh Hưng Yên và tỉnh Thái Bình
- Chủ tịch Ủy ban Trung ương MTTQ Việt Nam Đỗ Văn Chiến thăm làm việc tại phường Phố Hiến
- Công bố nghị quyết, quyết định của Trung ương, địa phương về sáp nhập đơn vị hành chính cấp tỉnh, cấp xã và kết thúc hoạt động cấp huyện
- Báo Thái Bình - Một hành trình với những mốc son lịch sử
- Thư tòa soạn
- Công bố quyết định của Bộ trưởng Bộ Công an, Giám đốc Công an tỉnh về công tác tổ chức, cán bộ
- Khởi công dự án nhà máy đốt chất thải rắn phát điện công nghệ hiện đại tại xã Thụy Trình
- Khởi công dự án đầu tư xây dựng sân golf Cồn Vành và dự án đầu tư xây dựng khu bến cảng hàng lỏng Ba Lạt
- Việt Nam nâng tầm vị thế tại Hội nghị quốc tế về biển và đại dương
- Hội thảo khoa học: Đồng chí Nguyễn Văn Linh – Nhà lãnh đạo kiên định, sáng tạo của Đảng và cách mạng Việt Nam