Ngôi nhà có thiết kế như một con đường
Nằm ở Bazel, vùng nông thôn gần sông Scheldt ở phía bắc Bỉ, ngôi nhà thu hút sự chú ý nhờ dáng vẻ độc đáo, lạ mắt

Gia chủ đưa ra yêu cầu về một ngôi nhà mà cô và gia đình sẽ thường xuyên ghé thăm để nghỉ ngơi vào cuối tuần.
Nhóm thiết kế nảy ra ý tưởng về công trình khác biệt với những ngôi nhà truyền thống gần đó. Phong cách chủ đạo làm nên thiết kế "như một con đường" cho ngôi nhà, chính là những bậc thang dẫn lối trong một hành lang trải dài từ đầu đến cuối.

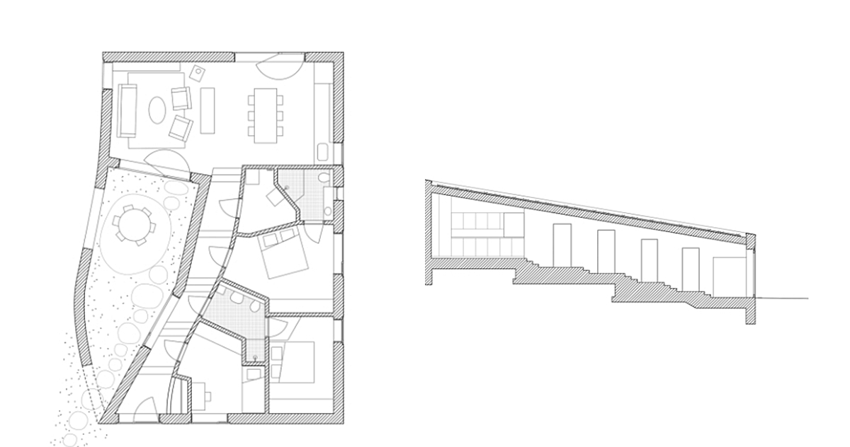
Bản vẽ thiết kế ngôi nhà.
Hành lang lối đi xuyên qua cả căn nhà, mô phỏng một con đường. Bên phải con đường là lối vào các phòng ngủ, bên trái là một "phòng ngoài trời". Phòng khách có diện tích lớn nhất được đặt ở cuối nhà, thông với bức tường nối ra khu vườn, tạo ra một không gian liên tục.

Ở tầng thấp nhất, cửa trước mở ra lối đi dẫn vào nhà bằng các bậc thang bằng gỗ. Bên phải lối đi là những cánh cửa dẫn đến ba phòng ngủ và hai phòng tắm. Một cửa sổ lớn ở bên trái dẫn tầm nhìn ra sân hiên có mái che, có chức năng như một "phòng ngoài trời".

Ở trên cùng của ngôi nhà là một phòng khách lớn và nhà bếp, với cửa sổ ở phía đông và phía tây, cùng với cửa kiểu Pháp mở ra sân hiên.

Một trong ba kiến trúc sư thiết kế, Dirk Somers cho biết: “Chúng tôi thích ý tưởng coi ngôi nhà như một lối đi lên dốc trên một con đường. Khi bạn đi bộ trên 'con đường', qua hành lang, bạn sẽ thấy được cây cối ở thung lũng Scheldt”.
“Hầu hết các ngôi nhà lâu đời ở đây đều sử dụng mặt cắt lệch tầng, nhưng vì diện tích khiêm tốn nên chúng tôi ưu tiên thiết kế dựa vào mối quan hệ chặt chẽ với địa hình tốc”, nhóm thiết kế cho biết thêm.

Đứng từ bậc thang phía cuối ngôi nhà nhìn xuống sẽ thấy "lối đi" qua những căn phòng phía bên phải.
"Phòng ngoài trời" được thiết kế liền kề với phòng khách và hành lang rộng rãi. "Căn phòng" này kết thúc bằng một bức tường trong khu vườn không có mái che tạo ra không gian mở và có cảm giác con đường vẫn kéo dài chứ không phải bị cụt.

Gạch với màu sắc tương phản được sử dụng cho nội thất và ngoại thất.

Căn nhà có tổng diện tích 146 m2 được xây bằng gạch, nhưng nhóm thiết kế hướng đến phong cách nhẹ nhàng, thay vì hùng vĩ, tráng lệ. Tất cả các ô gạch đều được sắp xếp phẳng, mịn, đều tăm tắp như “bản vẽ”.
Những viên gạch lớn bên ngoài được sơn màu đen, còn gạch bên trong có màu trắng. Những viên gạch được sử dụng cho sân thượng vẫn giữ được màu sắc tự nhiên của chúng. Theo studio thiết kế, việc sử dụng các màu sắc gạch khác nhau cho các không gian khác nhau đã giúp mang lại cho ngôi nhà một cảm giác vui tươi và vẻ ngoài "không trọng lượng".
Công trình được xây dựng trong 2 năm, hoàn thiện vào 2019.
Theo zingnews.vn
Tin cùng chuyên mục
- Kiến trúc độc đáo của cung điện gió gần 1.000 cửa sổ làm mát như điều hòa 08.04.2024 | 08:25 AM
- Nhà cấp 4 như mang cả bầu trời vào không gian nhờ cách thiết kế đơn giản 06.02.2023 | 15:06 PM
- Căn hộ Sài Gòn xóa tan cảm giác chung cư 25.04.2022 | 09:24 AM
- Chùa Bút Tháp - Kiến trúc cổ độc đáo vùng Kinh Bắc 19.07.2021 | 08:34 AM
- Độc đáo với nhà mang phong cách quán xá phố cổ Hội An 16.07.2021 | 14:56 PM
- Ngỡ ngàng với nhà mái bằng gác lửng có bể bơi trong nhà 15.07.2021 | 10:38 AM
- Căn nhà cấp 4 tuyệt đẹp với chi phí 850 triệu đồng. 15.07.2021 | 09:33 AM
- Ngôi nhà nhỏ sử dụng các vật liệu đơn giản, gần gũi tạo nên vẻ thân thiện, mộc mạc cho không gian sống. 13.07.2021 | 18:02 PM
- Độc đáo nhà gác xép bằng khung thép đặc biệt ở Đà Nẵng 13.07.2021 | 08:15 AM
- Ngẩn ngơ trước khu vườn bí mật trong ngôi nhà màu trắng ở Hải Phòng 12.07.2021 | 17:41 PM
Xem tin theo ngày
-
Đặc sắc chương trình nghệ thuật kỷ niệm 110 năm ngày sinh Tổng Bí thư Nguyễn Văn Linh và chào mừng hợp nhất tỉnh Hưng Yên và tỉnh Thái Bình
- Chủ tịch Ủy ban Trung ương MTTQ Việt Nam Đỗ Văn Chiến thăm làm việc tại phường Phố Hiến
- Công bố nghị quyết, quyết định của Trung ương, địa phương về sáp nhập đơn vị hành chính cấp tỉnh, cấp xã và kết thúc hoạt động cấp huyện
- Báo Thái Bình - Một hành trình với những mốc son lịch sử
- Thư tòa soạn
- Công bố quyết định của Bộ trưởng Bộ Công an, Giám đốc Công an tỉnh về công tác tổ chức, cán bộ
- Khởi công dự án nhà máy đốt chất thải rắn phát điện công nghệ hiện đại tại xã Thụy Trình
- Khởi công dự án đầu tư xây dựng sân golf Cồn Vành và dự án đầu tư xây dựng khu bến cảng hàng lỏng Ba Lạt
- Việt Nam nâng tầm vị thế tại Hội nghị quốc tế về biển và đại dương
- Hội thảo khoa học: Đồng chí Nguyễn Văn Linh – Nhà lãnh đạo kiên định, sáng tạo của Đảng và cách mạng Việt Nam