Gia đình Sơn La 'gộp hai nhà ống' thành tổ ấm đầy cây xanh

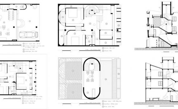
Ngôi nhà nằm ngay gần quảng trường Tây Bắc ở Sơn La gây ấn tượng bởi mặt tiền khác biệt so với những công trình xung quanh. Đây là tổ ấm của gia đình ba thế hệ, được ghép từ hai lô đất 5 x 14,8 m - nếu xây riêng chỉ có thể làm nhà ống.

Ngoài mặt tiền, các bồn cây mô phỏng hình ảnh đôi tay nâng niu mảng xanh. Chúng vừa tăng sức sống cho công trình, vừa tạo nên điểm nhấn.

Mặt tiền nhiều cây xanh kết hợp với khoảng đệm phía sau còn có tác dụng ngăn bụi và tiếng ồn vào nhà mà vẫn giữ được "view" ra bên ngoài.

Bên trong, nội thất công trình tiết chế màu sắc, sử dụng chủ yếu màu gỗ và trắng. Đường cong xuất hiện ở vách tường và trần để tăng cảm xúc và sự mềm mại cho không gian.

Thiết kế lệch tầng tạo nên độ chênh cao, cho phép nhiều luồng gió mát được lưu thông đến mọi nơi trong nhà.

Toàn bộ giếng trời được đưa về cuối nhà, nơi thường nhận được ít ánh sáng nhất.

Các mảng cây xanh và giếng trời đan xen vào nhau, bao quanh các phòng ngủ và khu vực sinh hoạt chung, tạo thành những "bức tranh" sống động. Người ở cũng dễ dàng cảm nhận ánh sáng thay đổi theo từng giờ.

Nhờ các khoảng giếng trời, mọi phòng ngủ đều được nhận đủ ánh sáng và gió. Gia chủ không phải dùng đèn điện vào ban ngày.

Đặc biệt, các tầng đều được bố trí nơi sinh hoạt chung để tám thành viên thêm gắn kết, điều mà ngày nay nhiều gia đình khó có được.

Thiết kế phòng thờ cũng tạo nên điểm đặc biệt cho căn nhà và "nhắc lại" hình ảnh mặt tiền.

Trên mái tầng ba, gần một nửa diện tích trở thành vườn rau. Kiến trúc sư và gia chủ còn làm thêm chỗ thưởng trà, trò chuyện vào những đêm trăng rằm. Tổng chi phí hoàn thiện căn nhà khoảng sáu tỷ đồng.
Theo vnexpress.net
Tin cùng chuyên mục
- Kiến trúc độc đáo của cung điện gió gần 1.000 cửa sổ làm mát như điều hòa 08.04.2024 | 08:25 AM
- Nhà cấp 4 như mang cả bầu trời vào không gian nhờ cách thiết kế đơn giản 06.02.2023 | 15:06 PM
- Căn hộ Sài Gòn xóa tan cảm giác chung cư 25.04.2022 | 09:24 AM
- Chùa Bút Tháp - Kiến trúc cổ độc đáo vùng Kinh Bắc 19.07.2021 | 08:34 AM
- Độc đáo với nhà mang phong cách quán xá phố cổ Hội An 16.07.2021 | 14:56 PM
- Ngỡ ngàng với nhà mái bằng gác lửng có bể bơi trong nhà 15.07.2021 | 10:38 AM
- Căn nhà cấp 4 tuyệt đẹp với chi phí 850 triệu đồng. 15.07.2021 | 09:33 AM
- Ngôi nhà nhỏ sử dụng các vật liệu đơn giản, gần gũi tạo nên vẻ thân thiện, mộc mạc cho không gian sống. 13.07.2021 | 18:02 PM
- Độc đáo nhà gác xép bằng khung thép đặc biệt ở Đà Nẵng 13.07.2021 | 08:15 AM
- Ngẩn ngơ trước khu vườn bí mật trong ngôi nhà màu trắng ở Hải Phòng 12.07.2021 | 17:41 PM
Xem tin theo ngày
-
Đặc sắc chương trình nghệ thuật kỷ niệm 110 năm ngày sinh Tổng Bí thư Nguyễn Văn Linh và chào mừng hợp nhất tỉnh Hưng Yên và tỉnh Thái Bình
- Chủ tịch Ủy ban Trung ương MTTQ Việt Nam Đỗ Văn Chiến thăm làm việc tại phường Phố Hiến
- Công bố nghị quyết, quyết định của Trung ương, địa phương về sáp nhập đơn vị hành chính cấp tỉnh, cấp xã và kết thúc hoạt động cấp huyện
- Báo Thái Bình - Một hành trình với những mốc son lịch sử
- Thư tòa soạn
- Công bố quyết định của Bộ trưởng Bộ Công an, Giám đốc Công an tỉnh về công tác tổ chức, cán bộ
- Khởi công dự án nhà máy đốt chất thải rắn phát điện công nghệ hiện đại tại xã Thụy Trình
- Khởi công dự án đầu tư xây dựng sân golf Cồn Vành và dự án đầu tư xây dựng khu bến cảng hàng lỏng Ba Lạt
- Việt Nam nâng tầm vị thế tại Hội nghị quốc tế về biển và đại dương
- Hội thảo khoa học: Đồng chí Nguyễn Văn Linh – Nhà lãnh đạo kiên định, sáng tạo của Đảng và cách mạng Việt Nam