Nhà rông kết hợp kiến trúc Pháp gợi gia chủ nhớ về thời thơ ấu
Căn nhà trên mảnh đất 7 x 21 m ở Đức Trọng, Lâm Đồng dành cho gia đình đôi vợ chồng và một đứa con ba tuổi. Gia chủ sinh năm 9x nên mong muốn căn nhà thể hiện cá tính trẻ trung với mức đầu tư vừa phải.

Từng có thời gian sống ở Đà Lạt thuở nhỏ, gia chủ còn mong căn nhà giữ được cái hồn của những công trình xưa cũ và mang nét văn hóa địa phương. Phương án của kiến trúc sư là thiết kế nhà hai tầng lấy cảm hứng từ nhà rông Tây Nguyên và trường Cao đẳng Sư phạm Đà Lạt do người Pháp xây dựng.

Nhìn từ phía ngoài, ngôi nhà đã thể hiện được những nét đặc trưng của hai công trình này qua mái nhọn và tường gạch.

Nhờ hình khối vuông vắn và hiện đại hơn nguyên mẫu, công trình phù hợp với độ tuổi của gia chủ cũng như xu thế kiến trúc ngày nay. Màu trắng và màu gạch đỏ của mặt tiền giúp công trình nổi bật mà vẫn hòa hợp với bối cảnh xung quanh.

Ngoài mong muốn căn nhà gợi nhớ nét xưa cũ, gia chủ còn muốn tổ ấm thông thoáng nên kiến trúc sư bố trí nhiều khe hở, giúp không khí lưu thông.

Để tiết kiệm chi phí cho gia chủ, nội thất được thiết kế vừa đủ đáp ứng nhu cầu sử dụng.

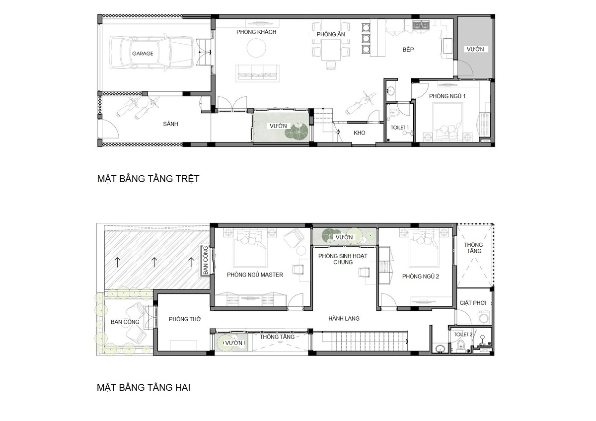
Nhà có bốn mảnh vườn nhỏ, vừa tăng mảng xanh cho công trình, vừa kết hợp thông tầng đưa ánh sáng đến mọi góc nhà.

Cũng nhờ các mảnh vườn nhỏ và thông tầng mà không gian trong nhà được kết nối với nhau

Người ở cũng dễ dàng nhìn thấy nhau và tương tác qua lại.

Khí hậu ở Đức Trọng ôn hòa, nhiệt độ trung bình 18-22 độ nhưng có nhiều ánh sáng. Để tận dụng ánh nắng tự nhiên, kiến trúc sư bố trí các ô cửa lớn ở cả không gian sinh hoạt chung lẫn phòng ngủ riêng tư. Nhờ đó, nhà sáng, ấm và tiết kiệm năng lượng.

Bản vẽ bố trí mặt bằng công trình. Chi phí hoàn thiện công trình khoảng 1,85 tỷ đồng.
Theo vnexpress.net
Tin cùng chuyên mục
- Kiến trúc độc đáo của cung điện gió gần 1.000 cửa sổ làm mát như điều hòa 08.04.2024 | 08:25 AM
- Nhà cấp 4 như mang cả bầu trời vào không gian nhờ cách thiết kế đơn giản 06.02.2023 | 15:06 PM
- Căn hộ Sài Gòn xóa tan cảm giác chung cư 25.04.2022 | 09:24 AM
- Chùa Bút Tháp - Kiến trúc cổ độc đáo vùng Kinh Bắc 19.07.2021 | 08:34 AM
- Độc đáo với nhà mang phong cách quán xá phố cổ Hội An 16.07.2021 | 14:56 PM
- Ngỡ ngàng với nhà mái bằng gác lửng có bể bơi trong nhà 15.07.2021 | 10:38 AM
- Căn nhà cấp 4 tuyệt đẹp với chi phí 850 triệu đồng. 15.07.2021 | 09:33 AM
- Ngôi nhà nhỏ sử dụng các vật liệu đơn giản, gần gũi tạo nên vẻ thân thiện, mộc mạc cho không gian sống. 13.07.2021 | 18:02 PM
- Độc đáo nhà gác xép bằng khung thép đặc biệt ở Đà Nẵng 13.07.2021 | 08:15 AM
- Ngẩn ngơ trước khu vườn bí mật trong ngôi nhà màu trắng ở Hải Phòng 12.07.2021 | 17:41 PM
Xem tin theo ngày
-
Đặc sắc chương trình nghệ thuật kỷ niệm 110 năm ngày sinh Tổng Bí thư Nguyễn Văn Linh và chào mừng hợp nhất tỉnh Hưng Yên và tỉnh Thái Bình
- Chủ tịch Ủy ban Trung ương MTTQ Việt Nam Đỗ Văn Chiến thăm làm việc tại phường Phố Hiến
- Công bố nghị quyết, quyết định của Trung ương, địa phương về sáp nhập đơn vị hành chính cấp tỉnh, cấp xã và kết thúc hoạt động cấp huyện
- Báo Thái Bình - Một hành trình với những mốc son lịch sử
- Thư tòa soạn
- Công bố quyết định của Bộ trưởng Bộ Công an, Giám đốc Công an tỉnh về công tác tổ chức, cán bộ
- Khởi công dự án nhà máy đốt chất thải rắn phát điện công nghệ hiện đại tại xã Thụy Trình
- Khởi công dự án đầu tư xây dựng sân golf Cồn Vành và dự án đầu tư xây dựng khu bến cảng hàng lỏng Ba Lạt
- Việt Nam nâng tầm vị thế tại Hội nghị quốc tế về biển và đại dương
- Hội thảo khoa học: Đồng chí Nguyễn Văn Linh – Nhà lãnh đạo kiên định, sáng tạo của Đảng và cách mạng Việt Nam