Ngôi nhà ở TP Biên Hòa đẹp hoàn hảo sau cải tạo
MAY house được xây dựng trên khu đất 5x19 m, nằm gần trung tâm thành phố Biên Hòa, tỉnh Đồng Nai. Công trình nằm trong khu dân cư được xây dựng đã lâu năm.
Các kiến trúc sư 90odesign đưa ra phương án thiết kế mới mẻ, vừa phù hợp nhu cầu sử dụng vừa đảm bảo tính thông thoáng, gần gũi với thiên nhiên.
Tổng chi phí cải tạo công trình khoảng 2 tỉ đồng (chưa bao gồm thiết bị gia dụng).

Mặt đứng ngôi nhà sử dụng gạch ống bốn lỗ thông thường, xoay mặt lỗ ra ngoài. Mặt tiền nhà kết hợp với những ô cửa sổ lá sách tạo sự kín đáo cần thiết nhưng vẫn đảm bảo thông gió tự nhiên và góc nhìn từ trong ra ngoài.

May house là tổ ấm của một gia đình trẻ với hai con nhỏ. Ngoài các nhu cầu cơ bản, gia chủ muốn có thêm một không gian nhỏ để tự thiết kế các sản phẩm thời trang tại nhà.

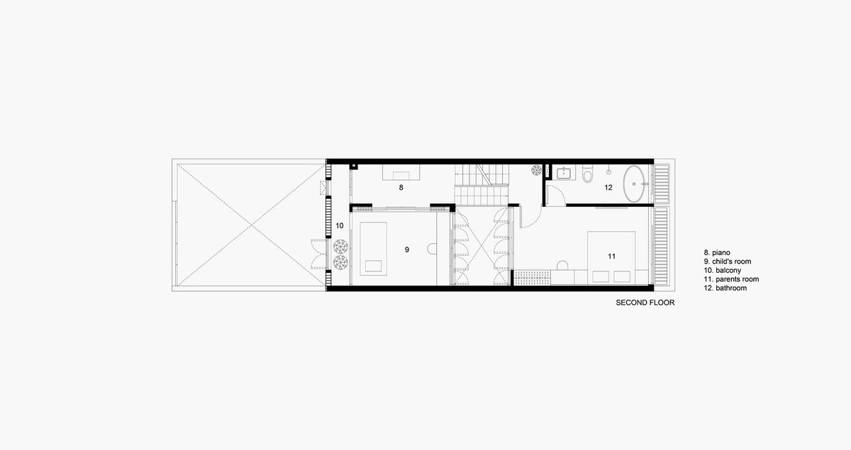
Không gian bếp ăn được nâng cao nhằm đáp ứng nhu cầu tụ họp đông người, đồng thời giúp cha mẹ dễ dàng quan sát con cái ở phòng ngủ phía trên.

Bên cạnh đó, do nhu cầu gặp gỡ người thân, bạn bè khá nhiều nên ưu tiên diện tích cho không gian bếp ăn để cùng nhau trò chuyện và nấu nướng vào dịp cuối tuần. Đặc biệt, chủ nhà mong muốn không gian sống được gần gũi với thiên nhiên nhiều nhất có thể. Vì vậy, kiến trúc sư phải làm sao để mọi nơi trong ngôi nhà đều cảm nhận được ánh nắng, làn gió mát và cây xanh.

Theo đó, kiến trúc sư 90odesign tận dụng hai khoảng sân trước và sân sau được chừa lại theo tiêu chuẩn quy hoạch của địa phương. Phần lõi thang và không gian phụ được đặt gọn về một phía, phần không gian sử dụng còn lại được thông suốt từ trước ra sau.

Giải pháp trên giúp ngôi nhà được đối lưu gió tốt, các phòng đều có hai mặt tiếp giáp với thiên nhiên. Các không gian sử dụng thường xuyên gồm không gian tiếp khách, bếp ăn, hai phòng ngủ và sân thượng được kiến trúc sư đặt ở phần dưới thấp để tiện sử dụng.

Ngôi nhà được bố trí lệch tầng ngược về phía sau, nhìn từ bên ngoài chỉ là ngôi nhà một trệt một lầu nhưng bên trong chiều cao được nâng lên thành một trệt và hai lầu tạo sự hài hòa với các ngôi nhà xung quanh.


Giữa nhà được kiến trúc sư mở một giếng trời lớn có xử lý thoát gió phía trên. Giếng trời giúp tăng cường chiếu sáng tự nhiên cho mọi không gian và tạo sự kết nối giữa các thành viên trong gia đình khi đứng ở bất kỳ không gian nào. Ngoài ra, hệ cửa lá sách gỗ đóng mở linh hoạt tạo sự riêng tư khi cần thiết và lưu thông gió kể cả khi đóng cửa.

Không gian làm việc được đặt trên cùng, tạo sự riêng tư cần thiết cho công việc sáng tạo của khách hàng.



Kiến trúc sư đã lựa chọn gam màu trắng làm chủ đạo, màu vàng của gỗ sồi kết hợp với những mảng cây xanh nhiệt đới, tạo sự tươi mới và nhẹ nhàng cho gia chủ. Nội thất được thiết kế tối giản, vừa đủ nhu cầu sử dụng, tạo nhiều khoảng trống giúp không gian thoáng mát hơn.



Cây xanh lớn được bố trí khá nhiều, nhằm biến khoảng sân này trở thành khu vườn nhiệt đới, gia chủ có thể nằm thư giãn và ngắm mây trời vào mỗi buổi chiều tối.



Theo plo.vn
Tin cùng chuyên mục
- Kiến trúc độc đáo của cung điện gió gần 1.000 cửa sổ làm mát như điều hòa 08.04.2024 | 08:25 AM
- Nhà cấp 4 như mang cả bầu trời vào không gian nhờ cách thiết kế đơn giản 06.02.2023 | 15:06 PM
- Căn hộ Sài Gòn xóa tan cảm giác chung cư 25.04.2022 | 09:24 AM
- Chùa Bút Tháp - Kiến trúc cổ độc đáo vùng Kinh Bắc 19.07.2021 | 08:34 AM
- Độc đáo với nhà mang phong cách quán xá phố cổ Hội An 16.07.2021 | 14:56 PM
- Ngỡ ngàng với nhà mái bằng gác lửng có bể bơi trong nhà 15.07.2021 | 10:38 AM
- Căn nhà cấp 4 tuyệt đẹp với chi phí 850 triệu đồng. 15.07.2021 | 09:33 AM
- Ngôi nhà nhỏ sử dụng các vật liệu đơn giản, gần gũi tạo nên vẻ thân thiện, mộc mạc cho không gian sống. 13.07.2021 | 18:02 PM
- Độc đáo nhà gác xép bằng khung thép đặc biệt ở Đà Nẵng 13.07.2021 | 08:15 AM
- Ngẩn ngơ trước khu vườn bí mật trong ngôi nhà màu trắng ở Hải Phòng 12.07.2021 | 17:41 PM
Xem tin theo ngày
-
Đặc sắc chương trình nghệ thuật kỷ niệm 110 năm ngày sinh Tổng Bí thư Nguyễn Văn Linh và chào mừng hợp nhất tỉnh Hưng Yên và tỉnh Thái Bình
- Chủ tịch Ủy ban Trung ương MTTQ Việt Nam Đỗ Văn Chiến thăm làm việc tại phường Phố Hiến
- Công bố nghị quyết, quyết định của Trung ương, địa phương về sáp nhập đơn vị hành chính cấp tỉnh, cấp xã và kết thúc hoạt động cấp huyện
- Báo Thái Bình - Một hành trình với những mốc son lịch sử
- Thư tòa soạn
- Công bố quyết định của Bộ trưởng Bộ Công an, Giám đốc Công an tỉnh về công tác tổ chức, cán bộ
- Khởi công dự án nhà máy đốt chất thải rắn phát điện công nghệ hiện đại tại xã Thụy Trình
- Khởi công dự án đầu tư xây dựng sân golf Cồn Vành và dự án đầu tư xây dựng khu bến cảng hàng lỏng Ba Lạt
- Việt Nam nâng tầm vị thế tại Hội nghị quốc tế về biển và đại dương
- Hội thảo khoa học: Đồng chí Nguyễn Văn Linh – Nhà lãnh đạo kiên định, sáng tạo của Đảng và cách mạng Việt Nam