Thác nước đổ tràn từ cầu thang nhà phố

Căn nhà ống diện tích 5x30 m ở phố Phan Châu Trinh, thị trấn Liên Nghĩa, huyện Đức Trọng mang đặc trưng nhà phố hẹp và dài, thiếu ánh sáng tự nhiên. Gia chủ là một người trẻ nên mong muốn có không gian sống hiện đại, thông thoáng và tiện nghi.

Ngay từ mặt tiền, căn nhà đã gây ấn tượng mạnh về thị giác bởi bên ngoài được bao phủ hệ lam thép sơn tĩnh điện với các họa tiết tam giác ngẫu nhiên, vừa tạo thẩm mỹ kiến trúc, vừa có tác dụng che chắn tầm nhìn từ phía ngoài. Để phù hợp với tổng thể mặt tiền, hai bức tường ngoài sân được sử dụng gạch bê tông 3D với họa tiết tam giác tương tự.

Ngôi nhà được thiết kế theo phong cách hiện đại với điểm nhấn là không gian cầu thang bay trên hồ bơi cùng thác nước mô phỏng thác Dambri. Hồ bơi với thác nước ngay tầng trệt không chỉ giúp điều hòa, làm mát không khí mà còn làm cân bằng độ ẩm trong nhà.

Để tạo ra dòng thác nước tràn, nước được lấy từ hồ bơi bên dưới rồi bơm tuần hoàn lên chiếu nghỉ cầu thang. Theo kiến trúc sư, khó khăn nhất khi thực hiện là việc tạo được máng inox giấu bên trong chiếu nghỉ sao cho mỏng nhất có thể. Vì chiếu nghỉ không quá dày nên cũng không ảnh hưởng đến thẩm mỹ nội thất.
"Chúng tôi và nhà thầu inox đã đưa ra được giải pháp máng tràn mỏng và hệ thống ống cấp nước với đường kính vừa đủ, để tạo thành công dòng thác nước tràn ngay trên cầu thang", kiến trúc sư phụ trách chia sẻ.

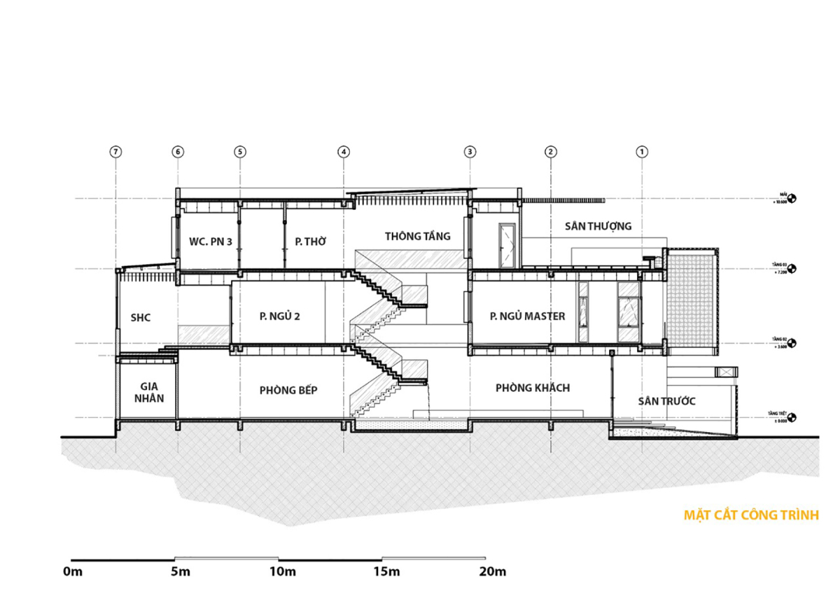
Khu đất với chiều dài 30m tạo cảm giác hẹp và tối, bởi vậy giải pháp nội thất là tạo khoảng thông tầng lớn giữa nhà. Thông tầng giúp điều hòa luồng không khí và chiếu sáng tự nhiên cho toàn bộ công trình.
Từ khoảng thông tầng, ánh sáng từ giếng trời xuyên qua cầu kính xuống phòng khách, tạo cảm giác không gian rộng hơn khi tầm nhìn mở rộng theo chiều cao của thông tầng thay vì theo chiều ngang hẹp.

Trong nhà có hai chiếc cầu kính, một ở tầng hai nối phòng ngủ master và cầu thang, chiếc còn lại nối phòng thờ ra sân thượng ở tầng ba. Cầu kính làm bằng kính cường lực nên có thể di chuyển bình thường phía trên. Ngoài tác dụng giao thông, cầu kính còn giúp đưa ánh sáng thiên nhiên từ giếng trời trên mái xuyên thấu xuống các phòng công năng phía dưới.

Khu vực bàn ăn ở tầng trệt với hệ vách kính lớn bao quanh và mái kính bên trên, được xem như không gian bán ngoài trời. Không gian này phù hợp khi chủ nhà làm tiệc nướng, khói sẽ thoát ra ngoài dễ dàng.
Để tạo điểm nhấn cho khu bếp, kiến trúc sư đã tạo ra mảng tường sọc bê tông, vừa tạo tính thẩm mỹ, vừa tránh việc nứt vỡ bề mặt tường do ảnh hưởng của thời tiết.

Mảng tường đá rối được xem như một yếu tố thẩm mỹ nổi bật của ngôi nhà. Đá tự nhiên, dùng keo dán chuyên dụng nên chịu được tải trọng cao, không bong tróc.
Tường đá rối kéo dài từ khu thông tầng cùa hồ bơi, bếp ăn lên đến mái lấy sáng và phòng thờ phía trên cùng. Sự xuất hiện của mảng tường đã hòa nhập được với khung cảnh thiên nhiên như thác nước, cây cối phía trong ngôi nhà.

Phòng vệ sinh được thiết kế liền kề với phòng ngủ, sử dụng vách kích như một giải pháp chiếu sáng xuyên phòng. Cách thiết kế mở này giúp không gian rộng thoáng, lại tiện lợi trong sinh hoạt cho chủ nhà.
Nội thất sử dụng những gam màu trung tính như đen, trắng xám đơn giản, trẻ trung nhưng không kém sự sang trọng.

Vì phía trên là hệ mái kính giếng trời, nên tại khu vực phòng thờ tầng ba, kiến trúc sư đã sử dụng các tấm tản sáng polycacbonate nhằm giảm bớt ánh sáng trực tiếp chiếu xuống bên dưới, gây hỏng nội thất. Cách làm này cũng làm giảm ánh sáng gián tiếp xuống khu vực tầng trệt.

Tầng ba sau nhà được bố trí góc nghỉ ngơi, thư giãn có tầm nhìn thoáng đãng, nơi mọi người có thể ngồi thư giãn, trò chuyện.

Công trình hoàn thiện năm 2022.
Theo vnexpress.net
Tin cùng chuyên mục
- Kiến trúc độc đáo của cung điện gió gần 1.000 cửa sổ làm mát như điều hòa 08.04.2024 | 08:25 AM
- Nhà cấp 4 như mang cả bầu trời vào không gian nhờ cách thiết kế đơn giản 06.02.2023 | 15:06 PM
- Căn hộ Sài Gòn xóa tan cảm giác chung cư 25.04.2022 | 09:24 AM
- Chùa Bút Tháp - Kiến trúc cổ độc đáo vùng Kinh Bắc 19.07.2021 | 08:34 AM
- Độc đáo với nhà mang phong cách quán xá phố cổ Hội An 16.07.2021 | 14:56 PM
- Ngỡ ngàng với nhà mái bằng gác lửng có bể bơi trong nhà 15.07.2021 | 10:38 AM
- Căn nhà cấp 4 tuyệt đẹp với chi phí 850 triệu đồng. 15.07.2021 | 09:33 AM
- Ngôi nhà nhỏ sử dụng các vật liệu đơn giản, gần gũi tạo nên vẻ thân thiện, mộc mạc cho không gian sống. 13.07.2021 | 18:02 PM
- Độc đáo nhà gác xép bằng khung thép đặc biệt ở Đà Nẵng 13.07.2021 | 08:15 AM
- Ngẩn ngơ trước khu vườn bí mật trong ngôi nhà màu trắng ở Hải Phòng 12.07.2021 | 17:41 PM
Xem tin theo ngày
-
Đặc sắc chương trình nghệ thuật kỷ niệm 110 năm ngày sinh Tổng Bí thư Nguyễn Văn Linh và chào mừng hợp nhất tỉnh Hưng Yên và tỉnh Thái Bình
- Chủ tịch Ủy ban Trung ương MTTQ Việt Nam Đỗ Văn Chiến thăm làm việc tại phường Phố Hiến
- Công bố nghị quyết, quyết định của Trung ương, địa phương về sáp nhập đơn vị hành chính cấp tỉnh, cấp xã và kết thúc hoạt động cấp huyện
- Báo Thái Bình - Một hành trình với những mốc son lịch sử
- Thư tòa soạn
- Công bố quyết định của Bộ trưởng Bộ Công an, Giám đốc Công an tỉnh về công tác tổ chức, cán bộ
- Khởi công dự án nhà máy đốt chất thải rắn phát điện công nghệ hiện đại tại xã Thụy Trình
- Khởi công dự án đầu tư xây dựng sân golf Cồn Vành và dự án đầu tư xây dựng khu bến cảng hàng lỏng Ba Lạt
- Việt Nam nâng tầm vị thế tại Hội nghị quốc tế về biển và đại dương
- Hội thảo khoa học: Đồng chí Nguyễn Văn Linh – Nhà lãnh đạo kiên định, sáng tạo của Đảng và cách mạng Việt Nam