Thứ 7, 09/05/2026, 18:03[GMT+7]

Nhà ống có 4 giếng trời

Chủ nhật, 16/10/2022 | 20:46:15
3,390 lượt xem
Ngoài tạo tính thẩm mỹ, bốn giếng trời giúp tăng ánh sáng tự nhiên, điều hòa nhiệt độ khiến không khí trong nhà luôn trong lành.

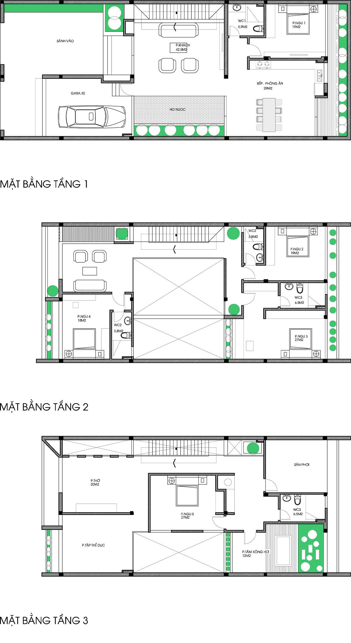
Ngôi nhà nằm trong khu đô thị mới của TP Hải Dương có diện tích 250 m2 (10 x 25 m) nhưng theo quy hoạch chỉ được phép xây dựng 60% diện tích đất (khoảng 136 m2) và không được quá ba tầng.

Yêu cầu của gia chủ là nhà phải có 5 phòng ngủ chính, gara đủ rộng để được hai ô tô. Ban đầu chủ nhà định xây biệt thự mini có sân vườn, nhưng nhóm thiết kế đã quyết định chuyển phương án xây theo kiểu nhà ống thông thường.

Ngôi nhà thiết kế theo phong cách hiện đại tối giản, tận dụng vật liệu có sẵn tại địa phương. Điểm nhấn chính là giếng trời giữa nhà, phía dưới là hồ cá, bao quanh là hệ thống cây xanh.

Theo kiến trúc sư phụ trách, giếng trời giữa nhà có diện tích lớn vì không nằm trong 60% diện tích được phép xây dựng. Bởi vậy, nó trở thành điểm nhấn và cũng là nguồn sáng, nguồn khí tươi chính của cả ngôi nhà.

Giếng trời trung tâm thông từ tầng một lên mái cũng là hình thức kết nối các tầng với nhau. Bản chất giếng trời là một cái ống, vì vậy âm thanh truyền trong giếng trời rất vang và rõ. Người ngồi tầng dưới nói chuyện, người tầng trên có thể nghe thấy, làm mất sự riêng tư hoặc làm phiền lẫn nhau. Bởi vậy, một mặt của giếng trời được xây bằng gạch nung truyền thống tạo độ nhám, vừa là thủ pháp trang trí, vừa để tiêu âm.

Để lấy gió từ mặt tiền đi vào, một bức tường bằng gạch bông gió được dựng lên, ngăn không gian giếng trời và khoảng sân trước nhà. Gió vì thế được lưu thông, khiến căn nhà luôn mát mẻ. 

Ngoài giếng trời trung tâm, căn nhà còn có thêm ba giếng trời nữa ở cầu thang, khu vực sinh hoạt chung và phía trước phòng tắm Jacuzzi.

Bốn giếng trời giúp các phòng đều được nhận ánh sáng tự nhiên và gió trời, đồng thời tạo ra điểm nhìn thú vị. Qua những giếng trời này, mọi thành viên trong gia đình dễ dàng tương tác với nhau từ phòng này sang phòng kia và từ tầng này đến tầng khác.

Không gian thông tầng lớn giúp các phòng công năng luôn chan hòa ánh sáng. Đứng ở vị trí nào trong nhà cũng có thể nhìn ra không gian xanh mát của giếng trời kết hợp khoảng thông tầng, khiến gia chủ có cảm giác được hòa mình cùng thiên nhiên.

Ngoài giếng trời, hệ lam cũng được kiến trúc sư sử dụng để tạo độ thông thoáng cho những phòng công năng.

Ngoài mặt tiền tầng ba, hệ lam còn được sử dụng bên ngoài phòng sinh hoạt chung tầng hai, ngay trên hồ cá. Việc sử dụng hệ lam nhôm giả gỗ vừa tạo độ thông thoáng, hút gió vào nhà, vừa đảm bảo sự kín đáo ở vị trí mặt tiền.

Khoảng thông tầng ngoài nhiệm vụ giúp các phòng thông thoáng, còn tạo sự kết nối giữa các tầng, thuận tiện cho giao tiếp. 

Phòng tắm Jacuzzi (bồn tắm sục) trên tầng ba hướng ra vườn cây xanh mát, mang đến những trải nghiệm thú vị cho gia chủ. Khu vực thư giãn này khiến ai bước vào cũng có cảm giác như đang ở khách sạn năm sao. 

Các mảng xanh được bố trí dưới giếng trời để thuận tiện cho cây cối phát triển. Những loại cây dễ sống trong nhà như phát tài núi, trầu bà, cúc tần Ấn Độ, thiết ngọc lan, vạn niên thanh... được ưu tiên sử dụng.


Bản vẽ công trình.

Thời gian thi công ngôi nhà là 5 tháng. Chi phí không được tiết lộ.

Theo vnexpress.net