Nhà phố phá cách hình tam giác
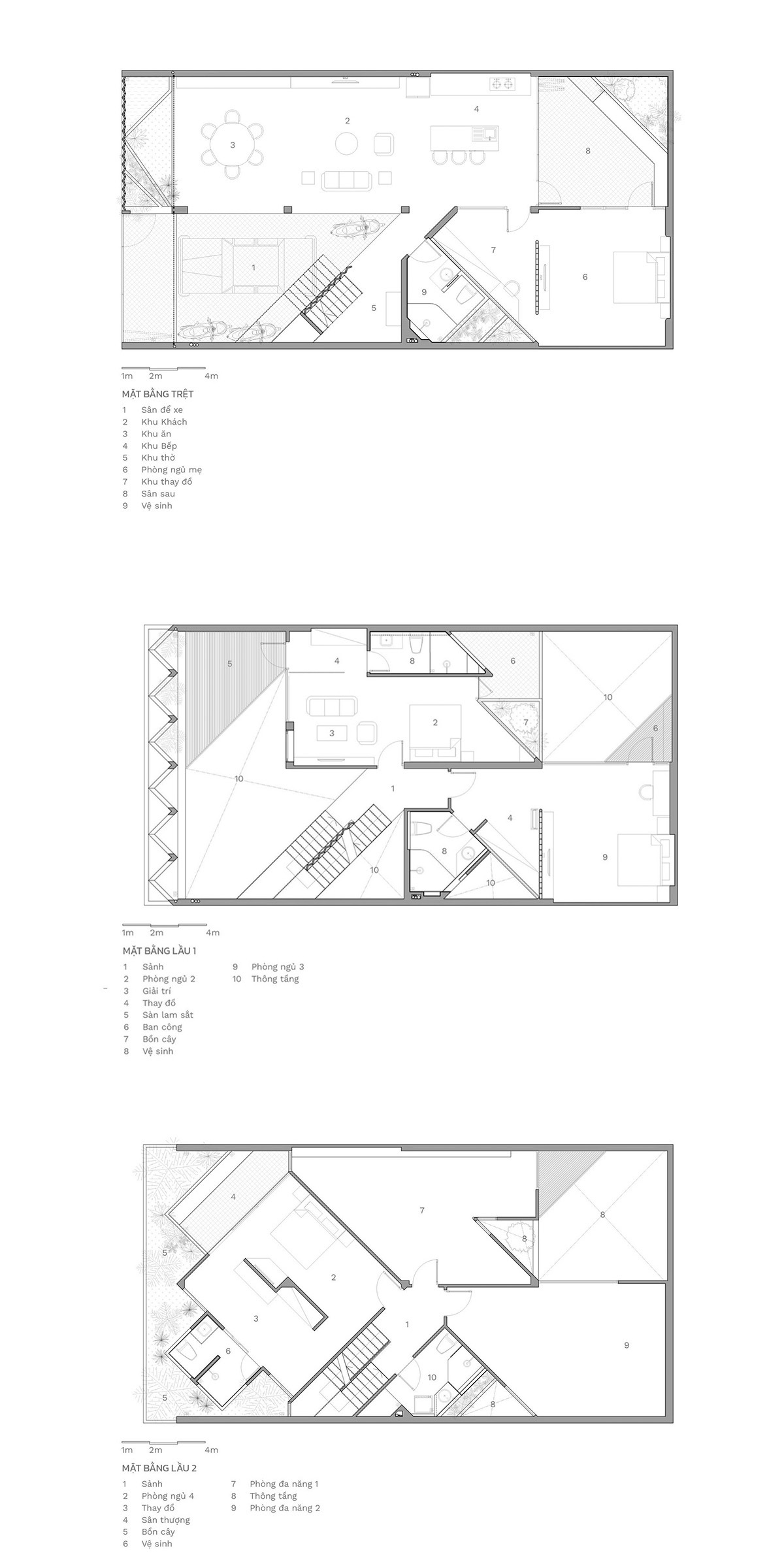
Căn nhà 150 m2 ở quận Tân Phú được cải tạo trên khung nhà cũ có tuổi đời nhiều năm. Ưu điểm căn nhà trước khi cải tạo là kết cấu còn vững chắc, phía trong có sân rộng thoáng mát. Tuy nhiên thiết kế chưa hợp lý khiến phòng ốc nhiều và thừa công năng.
Mong muốn của gia chủ là có không gian sống hoàn toàn mới, mang lại nhiều trải nghiệm thú vị.

Từ mong muốn này, nhóm kiến trúc sư đã giữ lại khung nhà kết cấu cũ, đập tường và thang để tạo trục giao thông mới. Vì nhà cũ có nhiều phòng thừa nên kiến trúc sư đã chọn cách chia mới thành những hình tam giác cắt xéo, tạo nên những phòng công năng với góc chia mới lạ. Cách chia này giúp mọi ngóc ngách trong nhà đều tiếp cận được với giếng trời, sân trong và trục giao thông mới.

Sau khi cải tạo, không chỉ mặt tiền mà bên trong với thiết kế cắt xéo khác biệt khiến ngôi nhà trở nên phá cách, độc đáo. Dấu ấn của của công trình là sự nhảy múa linh hoạt của những hình tam giác được thiết kế đặt để trong tổng thể, từ mặt đứng, hàng rào cho đến tường nội thất phòng khách, vách ngăn thang và gạch nền các phòng ngủ...

Công trình chủ yếu sử dụng đá mài, gạch bông và gạch bê tông để tạo cảm giác thô mộc, gần gũi mà vẫn sang trọng, ấm cúng. Điểm xuyết là những cây xanh len lỏi, góp phần tăng sức sống cho căn nhà.

Gác lửng bằng sắt được nối với phòng ngủ master. Không gian này được thiết kế nhằm tận dụng khoảng thông tầng mà không làm cho tầng trệt bí bách. Đây cũng là sân chơi lý tưởng cho con cái gia chủ.

Lý giải về thiết kế hình tam giác của công trình, kiến trúc sư phụ trách chia sẻ: "Chúng tôi nhận thấy hệ cầu thang cùng trục giao thông mới làm cho cách chia xéo các phòng công năng theo hình tam giác hợp lý hơn. Cách chia này khiến công trình không có chỗ thừa thãi, mà nơi nào cũng ngập nắng gió tự nhiên".
Việc sử dụng họa tiết tam giác cũng tạo ra sự mới mẻ trong trang trí nội thất, mang đến trải nghiệm sống mới cho chủ nhà.

Việc chia không gian theo các hình tam giác có phần đỉnh chụm vào nhau giúp việc tiếp cận các phòng dễ dàng hơn, không phải đi vòng vèo. Từ cửa đi vào, không gian các phòng dần mở rộng ra, có các mặt tiếp xúc với giếng trời khiến phòng nào cũng thông thoáng.

Kiến trúc sư vẫn giữ lại phần sân của nhà cũ làm lõi thông thoáng. Khi cải tạo lại, bố trí thêm một số giếng trời để lấy sáng, tăng sự liên kết không gian theo cả chiều dọc lẫn chiều ngang.
Cây xanh sử dụng trong nhà được lựa chọn những loại thông dụng và phù hợp với khí hậu TP HCM như cúc tần Ấn Độ, dương xỉ, thiên điểu...

Mọi ngóc ngách trong nhà kiến trúc sư cố gắng nhắc lại những hình tam giác cùng những đường xéo một cách có chủ đích, tạo ra nhiều điểm nhấn thú vị.

Ngoài những vật liệu chính như đá mài, gạch bông, gạch bê tông, một số phòng ngủ còn dùng gạch kính nhằm ngăn chia không gian, đồng thời lấy thêm sáng và tạo hiệu ứng thị giác.

Nhà vệ sinh dùng tấm gỗ đục lỗ tạo hoa văn. Vì trần nhà làm bằng kính nên tấm gỗ này ngoài tác dụng trang trí còn tạo bóng mát cho người sử dụng phía dưới.

Khi lên đèn, ngôi nhà như một chiếc đèn lồng nổi bật giữa phố.
Công trình hoàn thiện năm 2022 sau 5 tháng cải tạo.
Theo vnexpress.net
Tin cùng chuyên mục
- Kiến trúc độc đáo của cung điện gió gần 1.000 cửa sổ làm mát như điều hòa 08.04.2024 | 08:25 AM
- Nhà cấp 4 như mang cả bầu trời vào không gian nhờ cách thiết kế đơn giản 06.02.2023 | 15:06 PM
- Căn hộ Sài Gòn xóa tan cảm giác chung cư 25.04.2022 | 09:24 AM
- Chùa Bút Tháp - Kiến trúc cổ độc đáo vùng Kinh Bắc 19.07.2021 | 08:34 AM
- Độc đáo với nhà mang phong cách quán xá phố cổ Hội An 16.07.2021 | 14:56 PM
- Ngỡ ngàng với nhà mái bằng gác lửng có bể bơi trong nhà 15.07.2021 | 10:38 AM
- Căn nhà cấp 4 tuyệt đẹp với chi phí 850 triệu đồng. 15.07.2021 | 09:33 AM
- Ngôi nhà nhỏ sử dụng các vật liệu đơn giản, gần gũi tạo nên vẻ thân thiện, mộc mạc cho không gian sống. 13.07.2021 | 18:02 PM
- Độc đáo nhà gác xép bằng khung thép đặc biệt ở Đà Nẵng 13.07.2021 | 08:15 AM
- Ngẩn ngơ trước khu vườn bí mật trong ngôi nhà màu trắng ở Hải Phòng 12.07.2021 | 17:41 PM
Xem tin theo ngày
-
Đặc sắc chương trình nghệ thuật kỷ niệm 110 năm ngày sinh Tổng Bí thư Nguyễn Văn Linh và chào mừng hợp nhất tỉnh Hưng Yên và tỉnh Thái Bình
- Chủ tịch Ủy ban Trung ương MTTQ Việt Nam Đỗ Văn Chiến thăm làm việc tại phường Phố Hiến
- Công bố nghị quyết, quyết định của Trung ương, địa phương về sáp nhập đơn vị hành chính cấp tỉnh, cấp xã và kết thúc hoạt động cấp huyện
- Báo Thái Bình - Một hành trình với những mốc son lịch sử
- Thư tòa soạn
- Công bố quyết định của Bộ trưởng Bộ Công an, Giám đốc Công an tỉnh về công tác tổ chức, cán bộ
- Khởi công dự án nhà máy đốt chất thải rắn phát điện công nghệ hiện đại tại xã Thụy Trình
- Khởi công dự án đầu tư xây dựng sân golf Cồn Vành và dự án đầu tư xây dựng khu bến cảng hàng lỏng Ba Lạt
- Việt Nam nâng tầm vị thế tại Hội nghị quốc tế về biển và đại dương
- Hội thảo khoa học: Đồng chí Nguyễn Văn Linh – Nhà lãnh đạo kiên định, sáng tạo của Đảng và cách mạng Việt Nam