Ngôi nhà phong cách đồng quê Anh của chàng trai độc thân
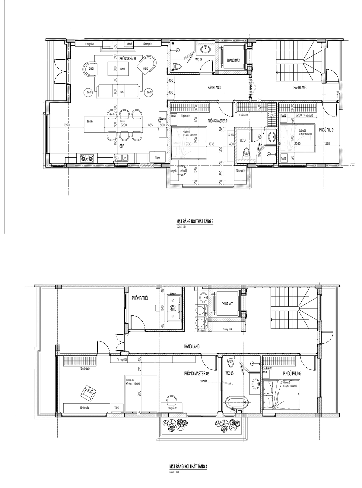
Không gian sinh hoạt của gia chủ độc thân ở chủ yếu nằm trên tầng 3 và 4. Vì ưa thích phong cách đồng quê Anh nên hai tầng này được chủ nhà đặt hàng kiến trúc sư thiết kế theo phong cách vừa hoài cổ, vừa hiện đại.

Phong cách đồng quê Anh không dùng quá nhiều phào chỉ, bóng bẩy mà hướng đến sự ấm cúng, thân thiện và sử dụng nhiều hệ cửa sổ để tận dụng tối đa ánh sáng tự nhiên.

Phòng khách và bếp được thiết kế theo kiểu truyền thống Anh, treo nhiều tranh vẽ thể hiện văn hóa, lịch sử vùng miền. Lò sưởi - nét văn hóa đặc trưng của phong cách đồng quê có màu xanh tạo thành điểm nhấn trong không gian phòng khách.

Phòng bếp của căn hộ sử dụng tone màu trung tính gồm xanh, ghi và trắng... không gây cảm giác mệt mỏi như sử dụng màu đậm. Màu sắc và hoạ tiết được sử dụng trong phong cách này thường đa dạng để làm điểm nhấn cho đồ nội thất. Ví dụ như bàn ăn, máy hút mùi, tủ rượu được sơn màu gỗ giả cổ, trong khi ghế tựa lại được dùng vải hoạ tiết màu hồng làm điểm nhấn khiến không gian luôn có sự biến đổi không bị nhàm chán.

Ô vuông trên trần nhà tạo điểm nhấn về thẩm mỹ, hiện đại nhưng không đơn điệu. Về mặt thẩm mỹ, những ô vuông mang đến cái nhìn khỏe khoắn, mạch lạc phù hợp với phong cách thiết kế hiện đại. Họa tiết ô vuông sắp xếp gần nhau còn là biểu tượng của sự kết nối, tạo nét độc đáo cho ngôi nhà.

Phong cách đồng quê Anh thường sử dụng tủ bếp màu sáng như trắng hay màu be, có thể điểm thêm màu sắc ở gạch ốp hoặc các phụ kiện bếp.

Phần tay nắm cửa của căn hộ, các thiết bị vệ sinh đều được làm bằng đồng nguyên chất.

Nhằm tăng lượng ánh sáng và gió trời vào không gian bên trong, nhóm thiết kế quyết định biến cầu thang thành trục giao thông xuyên suốt từ tầng hầm lên tới mái. Ánh sáng từ những cửa kính lớn dọc hành lang chiếu qua cầu thang dễ dàng tiếp cận tới không gian khác trong nhà.

Các vật liệu được sơn hiệu ứng giả cổ, dán tường họa tiết... với mục đích "tạo dấu ấn thời gian". Hành lang dài với ánh sáng vàng hoàng hôn khiến mọi người liên tưởng đến những lâu đài cổ ở nước Anh.

Hệ giấy dán tường trong phòng ngủ có màu sắc dịu mát, một điểm rất dễ nhận thấy trong phong cách đồng quê Anh.

Công trình hoàn thiện năm 2022.
Theo vnexpress.net
Tin cùng chuyên mục
- Kiến trúc độc đáo của cung điện gió gần 1.000 cửa sổ làm mát như điều hòa 08.04.2024 | 08:25 AM
- Nhà cấp 4 như mang cả bầu trời vào không gian nhờ cách thiết kế đơn giản 06.02.2023 | 15:06 PM
- Căn hộ Sài Gòn xóa tan cảm giác chung cư 25.04.2022 | 09:24 AM
- Chùa Bút Tháp - Kiến trúc cổ độc đáo vùng Kinh Bắc 19.07.2021 | 08:34 AM
- Độc đáo với nhà mang phong cách quán xá phố cổ Hội An 16.07.2021 | 14:56 PM
- Ngỡ ngàng với nhà mái bằng gác lửng có bể bơi trong nhà 15.07.2021 | 10:38 AM
- Căn nhà cấp 4 tuyệt đẹp với chi phí 850 triệu đồng. 15.07.2021 | 09:33 AM
- Ngôi nhà nhỏ sử dụng các vật liệu đơn giản, gần gũi tạo nên vẻ thân thiện, mộc mạc cho không gian sống. 13.07.2021 | 18:02 PM
- Độc đáo nhà gác xép bằng khung thép đặc biệt ở Đà Nẵng 13.07.2021 | 08:15 AM
- Ngẩn ngơ trước khu vườn bí mật trong ngôi nhà màu trắng ở Hải Phòng 12.07.2021 | 17:41 PM
Xem tin theo ngày
-
Đặc sắc chương trình nghệ thuật kỷ niệm 110 năm ngày sinh Tổng Bí thư Nguyễn Văn Linh và chào mừng hợp nhất tỉnh Hưng Yên và tỉnh Thái Bình
- Chủ tịch Ủy ban Trung ương MTTQ Việt Nam Đỗ Văn Chiến thăm làm việc tại phường Phố Hiến
- Công bố nghị quyết, quyết định của Trung ương, địa phương về sáp nhập đơn vị hành chính cấp tỉnh, cấp xã và kết thúc hoạt động cấp huyện
- Báo Thái Bình - Một hành trình với những mốc son lịch sử
- Thư tòa soạn
- Công bố quyết định của Bộ trưởng Bộ Công an, Giám đốc Công an tỉnh về công tác tổ chức, cán bộ
- Khởi công dự án nhà máy đốt chất thải rắn phát điện công nghệ hiện đại tại xã Thụy Trình
- Khởi công dự án đầu tư xây dựng sân golf Cồn Vành và dự án đầu tư xây dựng khu bến cảng hàng lỏng Ba Lạt
- Việt Nam nâng tầm vị thế tại Hội nghị quốc tế về biển và đại dương
- Hội thảo khoa học: Đồng chí Nguyễn Văn Linh – Nhà lãnh đạo kiên định, sáng tạo của Đảng và cách mạng Việt Nam