Nhà ống làm thông tầng xuyên mái
Điểm đặc biệt của ngôi nhà là khoảng thông tầng xuyên mái từ khu vệ sinh của phòng ngủ master tại lầu một.

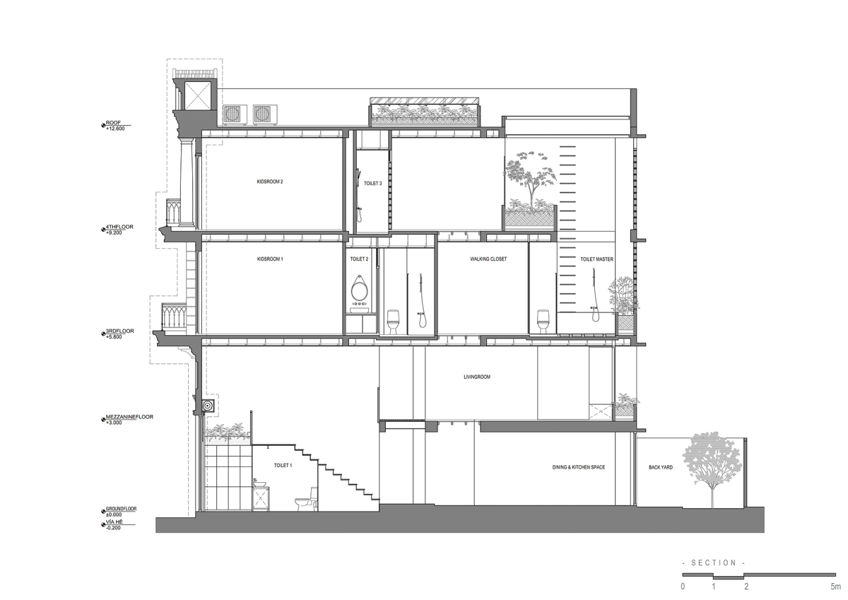
Căn nhà gồm một trệt, một lửng, hai lầu, diện tích 70 m2 (5 x 14 m) được xây dựng tại huyện Nhơn Trạch, tỉnh Đồng Nai. Nhà nằm trong khu quy hoạch nên ngoại thất không được thay đổi kèm theo những hạn chế về chỉ giới xây dựng cũng như chiều cao.

Trong khi đó, chủ nhà là người yêu thích thiên nhiên, mong muốn có không gian sống chan hòa tự nhiên. Nhóm thiết kế quyết định bố trí lại không gian trong nhà, thay đổi vị trí thang, bố trí thêm nhiều khoảng thông tầng, cây xanh cũng như sử dụng vật liệu thô mộc để thỏa mãn gia chủ.

Thay cho bức tường nặng nề, kiến trúc sư đã bố trí một kệ sắt đặt giữa nhà làm nơi trưng bày chậu cây xanh trang trí, vừa như một vách ngăn giữa cổng vào và khu sinh hoạt chung.
Cầu thang khung sắt bậc gỗ thay thế cho thang bê tông giúp không gian nhẹ nhàng và thân thiện hơn.

Ngay giữa tầng trệt, kiến trúc sư đặt một hồ cá và cầu gỗ vắt qua giúp cho không gian sống trở nên sống động và gần gũi với thiên nhiên hơn.

Toàn bộ tầng lửng dành cho không gian sinh hoạt chung của gia đình bốn thành viên.
Khu vực này còn được tô điểm bởi cây xanh trồng dưới giếng trời, kèm ánh sáng rọi vào từ tường kính. Việc sử dụng nội thất hoàn toàn bằng gỗ tự nhiên cũng tạo nên sự mộc mạc, thân thiện.

Ít nhà phố nào chấp nhận đánh đổi nhiều không gian như vậy cho một khu vệ sinh nhưng hiệu quả đem lại là tăng nguồn sáng đáng kể cho phòng ngủ master. Thông tầng giúp điều hòa luồng không khí và chiếu sáng tự nhiên cho toàn bộ công trình.

Nhà vệ sinh trong phòng ngủ master được thiết kế mở với nhiều cây xanh và ánh sáng tự nhiên mang dáng dấp của một resort. Do tận dụng được ánh sáng và gió nên khu vực này luôn khô ráo.
Gạch kính được sử dụng tại nhà vệ sinh nhằm lấy sáng cũng như tạo điểm nhấn trang trí. Vật liệu này tuy có cấu tạo rỗng nhưng đứng ở bên ngoài không thể nhìn thấy gì bên trong.

Phòng ngủ master ngăn cách với khu vực vệ sinh thông qua tấm kính lớn. Ánh sáng từ khoảng thông tầng dễ dàng tiếp cận không gian này qua vách kính.

Tiếp xúc với thiên nhiên bên ngoài và thông tầng bên trong, các phòng trong nhà đều đối lưu không khí tốt.

Bản vẽ công trình.
Ngôi nhà hoàn thiện năm 2022.
Theo vnexpress.net
Tin cùng chuyên mục
- Kiến trúc độc đáo của cung điện gió gần 1.000 cửa sổ làm mát như điều hòa 08.04.2024 | 08:25 AM
- Nhà cấp 4 như mang cả bầu trời vào không gian nhờ cách thiết kế đơn giản 06.02.2023 | 15:06 PM
- Căn hộ Sài Gòn xóa tan cảm giác chung cư 25.04.2022 | 09:24 AM
- Chùa Bút Tháp - Kiến trúc cổ độc đáo vùng Kinh Bắc 19.07.2021 | 08:34 AM
- Độc đáo với nhà mang phong cách quán xá phố cổ Hội An 16.07.2021 | 14:56 PM
- Ngỡ ngàng với nhà mái bằng gác lửng có bể bơi trong nhà 15.07.2021 | 10:38 AM
- Căn nhà cấp 4 tuyệt đẹp với chi phí 850 triệu đồng. 15.07.2021 | 09:33 AM
- Ngôi nhà nhỏ sử dụng các vật liệu đơn giản, gần gũi tạo nên vẻ thân thiện, mộc mạc cho không gian sống. 13.07.2021 | 18:02 PM
- Độc đáo nhà gác xép bằng khung thép đặc biệt ở Đà Nẵng 13.07.2021 | 08:15 AM
- Ngẩn ngơ trước khu vườn bí mật trong ngôi nhà màu trắng ở Hải Phòng 12.07.2021 | 17:41 PM
Xem tin theo ngày
-
Đặc sắc chương trình nghệ thuật kỷ niệm 110 năm ngày sinh Tổng Bí thư Nguyễn Văn Linh và chào mừng hợp nhất tỉnh Hưng Yên và tỉnh Thái Bình
- Chủ tịch Ủy ban Trung ương MTTQ Việt Nam Đỗ Văn Chiến thăm làm việc tại phường Phố Hiến
- Công bố nghị quyết, quyết định của Trung ương, địa phương về sáp nhập đơn vị hành chính cấp tỉnh, cấp xã và kết thúc hoạt động cấp huyện
- Báo Thái Bình - Một hành trình với những mốc son lịch sử
- Thư tòa soạn
- Công bố quyết định của Bộ trưởng Bộ Công an, Giám đốc Công an tỉnh về công tác tổ chức, cán bộ
- Khởi công dự án nhà máy đốt chất thải rắn phát điện công nghệ hiện đại tại xã Thụy Trình
- Khởi công dự án đầu tư xây dựng sân golf Cồn Vành và dự án đầu tư xây dựng khu bến cảng hàng lỏng Ba Lạt
- Việt Nam nâng tầm vị thế tại Hội nghị quốc tế về biển và đại dương
- Hội thảo khoa học: Đồng chí Nguyễn Văn Linh – Nhà lãnh đạo kiên định, sáng tạo của Đảng và cách mạng Việt Nam