Thứ 7, 09/05/2026, 16:39[GMT+7]

Căn chung cư có mái hiên lợp lá cọ

Chủ nhật, 03/07/2022 | 08:57:03
1,878 lượt xem
Mái hiên che mảnh vườn 20 mét vuông trở thành điểm nhấn ấn tượng nhất cho căn hộ được thiết kế theo phong cách phong cách vintage kết hợp wabi sabi.

Căn hộ 176 m2 của chị Mỹ Linh nằm trong một chung cư ở quận Thanh Xuân, Hà Nội. Ưu điểm của căn hộ trước khi cải tạo là ở vị trí góc, không gian thoáng, nhiều ánh sáng tự nhiên với hai ban công trải dài 26 m.

Mong muốn của gia chủ là có không gian sống mộc mạc, đem lại sự gần gũi và ấm cúng. Bà mẹ hai con đã cùng kiến trúc sư bàn thảo thiết kế và quyết định chọn phong cách vintage kết hợp wabi sabi cho căn hộ bốn thành viên.

Phong cách vintage (cổ điển) mang đến không gian sự nhẹ nhàng mang dấu ấn thời gian. Phong cách Wabi sabi của người Nhật chỉ sự nguyên sơ, bình dị, hài hòa với thiên nhiên.

Khi nhận nhà thô, chị Linh đã quyết định đập đi toàn bộ tường phân chia phòng.

Sau khi cải tạo, căn hộ có phòng khách nối liền bếp, phòng ăn với diện tích 70 m2. Sự liên kết giữa các không gian làm tăng kết nối các thành viên trong gia đình.

Chủ nhà đã lựa chọn những tông màu sáng cho bếp, đồng thời làm cửa sổ lớn để đón ánh sáng tự nhiên. Phong cách vintage được thể hiện rõ tại khu vực này khi nội thất thể hiện sự mộc mạc, tối giản.

Nội thất bếp, bàn ăn, phòng khách dùng chất liệu gỗ sồi tự nhiên không bóng bẩy mà vẫn sang trọng.

Góc nhìn từ ban công qua ô cửa sổ vào nhà.

Chiếc kệ ti vi bằng gỗ lũa đơn giản tạo cảm giác rộng rãi cho không gian phòng khách.

Chủ nhà dành 20 m2 để làm khu vườn nhỏ trước cửa chính. Từ phòng khách nhìn ra, khu vườn có những bậc thang lên xuống. Ngồi đây gia chủ có thể nhìn ngắm bể cá phía dưới.

Phía ngoài vườn, chị Linh thiết kế bể cá nhỏ 5 m2, bên cạnh cây xanh là thác nước đổ. Đây là điểm nhấn thiết kế mang lại cảm giác mát mẻ và sinh động cho căn hộ.

Để nước không thấm xuống nhà phía dưới, kiến trúc sư đã làm lớp chống thấm dày gấp năm lần so với lớp chống thấm ở nhà vệ sinh thông thường.

Khu vườn có mái che như nhà mặt đất từ chất liệu gỗ thông, trên lợp lá cọ. Mái hiên này có tác dụng che phủ trần nhà thô, tạo điểm nhấn cho căn hộ. Một cây gỗ nguyên khối được chế thành chỗ nghỉ chân, mang phong cách Wabi sabi. Phía trên tường còn có khung cửa sổ nhỏ, ở vị trí nào trong nhà cũng có thể ngắm nhìn khu vườn bên ngoài.

Phòng ngủ master bao quanh là kính, không gian ngập nắng gió. Trong phòng ngủ, gia chủ sử dụng giường kiểu Nhật dạng bệt với phần vai giường rộng, thấp và sát sàn, không có chân giường. Thiết kế giường này khiến căn phòng có cảm giác rộng rãi hơn.

Ban công cũng là khu vực chị Linh yêu thích. xung quanh trồng nhiều cây xanh tạo cảm giác thoáng đãng và gần gũi thiên nhiên.

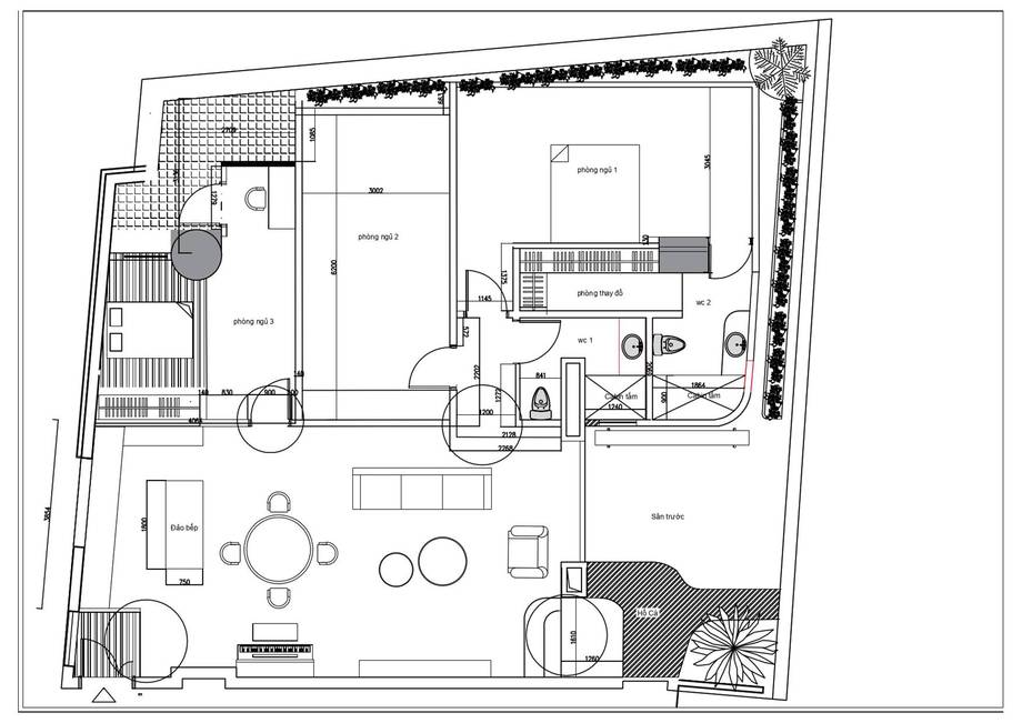
Bản vẽ căn hộ sau cải tạo.

Theo vnexpress.net