Ngôi nhà như pháo đài quanh bể bơi
Bể bơi được bao quanh bởi những bức tường bê tông như pháo đài.
Ngôi nhà một tầng nằm ở thành phố Mérida, bang Yucatán được xây dựng dựa trên cảm hứng về một đài quan sát được chiếu sáng bởi ánh mặt trời.
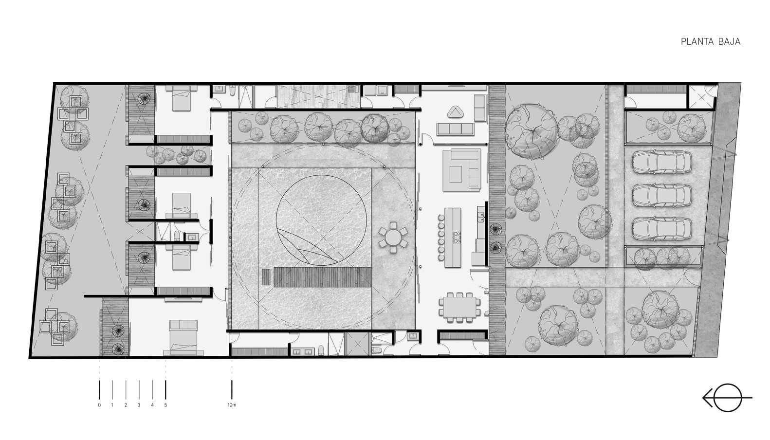
Ở trung tâm ngôi nhà rộng hơn 450 m2 là hồ bơi kế hợp sân vườn. Phía trên lớp tường bao, nhóm thiết kế đặt thêm một bức tường hình trụ quây quanh khu vực này.
Các ô trống như tổ ong trên hình trụ cho phép ánh sáng tự nhiên đi qua để gia chủ cảm nhận sự thay đổi của thời gian. Bên cạnh đó, chiều sâu của hình trụ giúp không gian có đủ bóng râm suốt cả ngày mà không cần dùng thêm mái che.

Nhờ những lớp tường bê tông, gia chủ thoải mái thư giãn ở bể bơi mà không sợ nắng.
Ngoài khu vườn ở trung tâm, căn nhà còn có hai khu vườn ở trước và sau nhà, trong đó sân trước là công cộng nhất còn sâu sau là riêng tư nhất. Xen giữa ba khoảng sân là ba khối sinh hoạt gồm dịch vụ (chỗ để xe), khu vực sinh hoạt chung và khu vực cá nhân (các phòng ngủ).
Ngăn cách giữa không gian bên ngoài với không gian bên trong là hệ cửa kính trượt. Nhờ đó, ranh giới giữa thiên nhiên và nơi ở của con người được xóa mờ.

Không gian nhà được thiết kế mở để tăng kết nối giữa con người với thiên nhiên.
Ba khu vườn ở trước, giữa và sau nhà giúp người ở luôn được tiếp xúc với cây cối, nắng, gió. 
Bể bơi nằm giữa "pháo đài" bê tông là điểm nhấn đặc biệt của công trình. 
Tường dạng tổ ong cho phép ánh sắng đi qua. Từ bể bơi nhìn lên, gia chủ có một khoảng trời riêng. Gia chủ có thể cảm nhận sự thay đổi của thời gian và thời tiết. 
Tường tổ ong cũng tạo nên những hiệu ứng ánh sáng trên tường. 
Bản vẽ bố trí mặt bằng của công trình.
Theo vnexpress.net
Tin cùng chuyên mục
- Kiến trúc độc đáo của cung điện gió gần 1.000 cửa sổ làm mát như điều hòa 08.04.2024 | 08:25 AM
- Nhà cấp 4 như mang cả bầu trời vào không gian nhờ cách thiết kế đơn giản 06.02.2023 | 15:06 PM
- Căn hộ Sài Gòn xóa tan cảm giác chung cư 25.04.2022 | 09:24 AM
- Chùa Bút Tháp - Kiến trúc cổ độc đáo vùng Kinh Bắc 19.07.2021 | 08:34 AM
- Độc đáo với nhà mang phong cách quán xá phố cổ Hội An 16.07.2021 | 14:56 PM
- Ngỡ ngàng với nhà mái bằng gác lửng có bể bơi trong nhà 15.07.2021 | 10:38 AM
- Căn nhà cấp 4 tuyệt đẹp với chi phí 850 triệu đồng. 15.07.2021 | 09:33 AM
- Ngôi nhà nhỏ sử dụng các vật liệu đơn giản, gần gũi tạo nên vẻ thân thiện, mộc mạc cho không gian sống. 13.07.2021 | 18:02 PM
- Độc đáo nhà gác xép bằng khung thép đặc biệt ở Đà Nẵng 13.07.2021 | 08:15 AM
- Ngẩn ngơ trước khu vườn bí mật trong ngôi nhà màu trắng ở Hải Phòng 12.07.2021 | 17:41 PM
Xem tin theo ngày
-
Đặc sắc chương trình nghệ thuật kỷ niệm 110 năm ngày sinh Tổng Bí thư Nguyễn Văn Linh và chào mừng hợp nhất tỉnh Hưng Yên và tỉnh Thái Bình
- Chủ tịch Ủy ban Trung ương MTTQ Việt Nam Đỗ Văn Chiến thăm làm việc tại phường Phố Hiến
- Công bố nghị quyết, quyết định của Trung ương, địa phương về sáp nhập đơn vị hành chính cấp tỉnh, cấp xã và kết thúc hoạt động cấp huyện
- Báo Thái Bình - Một hành trình với những mốc son lịch sử
- Thư tòa soạn
- Công bố quyết định của Bộ trưởng Bộ Công an, Giám đốc Công an tỉnh về công tác tổ chức, cán bộ
- Khởi công dự án nhà máy đốt chất thải rắn phát điện công nghệ hiện đại tại xã Thụy Trình
- Khởi công dự án đầu tư xây dựng sân golf Cồn Vành và dự án đầu tư xây dựng khu bến cảng hàng lỏng Ba Lạt
- Việt Nam nâng tầm vị thế tại Hội nghị quốc tế về biển và đại dương
- Hội thảo khoa học: Đồng chí Nguyễn Văn Linh – Nhà lãnh đạo kiên định, sáng tạo của Đảng và cách mạng Việt Nam