Thứ 4, 25/03/2026, 16:30[GMT+7]

Dựng nhà gỗ cho con gái trong chung cư hiện đại

Chủ nhật, 05/06/2022 | 17:19:58
1,515 lượt xem
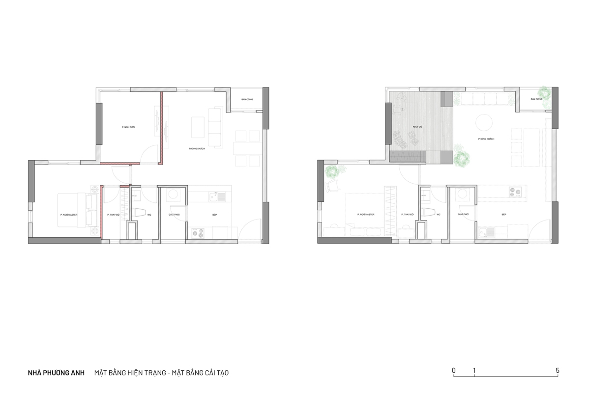
Bên trong căn hộ 65 mét vuông ở quận 2, căn nhà gỗ màu hồng 10 mét vuông với đầy đủ chức năng được gia chủ dành tặng con gái.

Dựa trên mong muốn của bé gái muốn có một phòng học tập, vui chơi, và có một ngôi nhà nhỏ của riêng mình, kiến trúc sư đã tạo khối nhà gỗ dành riêng cho trẻ nhỏ. Ở đây bé có không gian riêng để dựng lều trại, chơi đồ hàng... thỏa sức tưởng tượng.

Căn nhà gỗ gồm tủ quần áo, tủ kệ trưng bày đồ chơi, bàn học và tầng hai rộng 5 m2 là chỗ ngủ.

Ngôi nhà gỗ có mái hiên dốc như những ngôi nhà truyền thống. Khu vực này liên kết trực tiếp với phòng sinh hoạt chung nên cha mẹ có thể kết nối, trò chuyện và quan sát con. Bé học tập, ngủ nghỉ trong đó cũng không có cảm giác đang ở nhà một mình.

Kiến trúc sư đã sử dụng gỗ công nghiệp cho khối gỗ chính và hệ khung thép chịu lực chính để đỡ hệ cửa lùa, mái và tầng hai để ngủ. Khung thép được che bằng gỗ. Móng là hệ khung xương gỗ đặt trên bề mặt hiện trạng.

Không gian sinh hoạt chung nằm ở trung tâm ngôi nhà ngoài nhà gỗ của trẻ còn có khu vực bếp và phòng khách. Là căn góc nên ưu điểm của căn hộ là có hai mặt tự nhiên và lấy sáng. Gia chủ có thể thoải mái tận hưởng không gian sống thông thoáng với hai hướng nhìn khác nhau.

Mong muốn của chủ nhà là có căn hộ hiện đại, thông thoáng, có sự kết nối các thành viên nên kiến trúc sư đã thiết kế để hướng mọi chức năng trong nhà thông qua phòng sinh hoạt chung.

Các khu chức năng bởi thế được phân chia không có sự ngăn cách rõ ràng. Bếp nhiều tủ chứa các vật dụng sinh hoạt, còn có quầy bar hướng ra bàn ăn. Hệ tủ tích hợp ghế bàn ăn, sofa gắn tường, tone màu chủ đạo là trắng sữa nhằm tạo cảm giác rộng thoáng với điểm nhấn là vật liệu gỗ.

Khi nhận căn hộ, kiến trúc sự đã tháo dỡ tường phòng ngủ của bé gái để tạo sự liên kết với không gian bên ngoài. Đồng thời tháo dỡ vách tường phòng vệ sinh không sử dụng thành phòng thay đồ cho phòng ngủ master, khiến căn phòng này rộng và tiện nghi hơn. 

Ngoài phòng thay đồ, khu vực bàn trang điểm cho nữ chủ nhà cũng được cải tạo từ một góc phòng vệ sinh không sử dụng. 

Tổng thời gian cải tạo, gồm cả phần tháo dỡ và thi công nội thất là 1,5 tháng. Chi phí toàn bộ cho công trình là 300 triệu đồng.

Theo vnexpress.net