Thứ 7, 09/05/2026, 16:23[GMT+7]

Biệt thự ở miền Tây gây chú ý với lối thiết kế không gian mở

Thứ 2, 08/11/2021 | 12:14:02
1,999 lượt xem
Mong muốn của kiến trúc sư khi thiết kế biệt thự này là không chỉ mang đến một nơi an cư thuận tiện mà còn mang đến những trải nghiệm với nhiều không gian.

Mặt tiền của biệt thự.

Đây là một căn biệt thự nhỏ dành cho một gia đình nằm trên trục đường chính sôi động và sầm uất của thành phố Mỹ Tho, tỉnh Tiền Giang. Diện tích của căn biệt thự này không quá lớn. 

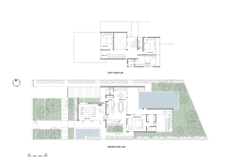
Mặt bằng chi tiết của công trình.  

Trong khuôn viên hạn hẹp, không gian sống cần đảm bảo mật độ xây dựng và các khoảng cách tạo nên không gian yên tĩnh, riêng tư cho các thành viên trong gia đình. Nó làm cho họ thư giãn khi trở về nhà sau một ngày làm việc bận rộn. 

Mong muốn của kiến trúc sư là không chỉ mang đến một nơi an cư thuận tiện mà còn mang đến những trải nghiệm với nhiều không gian khác nhau và những yếu tố thiên nhiên hấp dẫn bao gồm ánh sáng tự nhiên và vấn đề thông gió. 

Gia chủ dành phần lớn diện tích cho sân vườn. 

Đằng sau hàng rào bê tông đơn sơ, thông qua khu vườn rộng lớn hài hòa phía trước, mặt tiền của căn biệt thự đang dần trải dài dưới bóng cây khiến kiến trúc biệt thự có một diện mạo khá khiêm tốn.

Không gian phòng khách thoáng đãng. 

Phương pháp mái hiên lớn và cửa thông gió bằng gỗ giúp hạn chế ánh sáng mặt trời trong khi gia chủ vẫn có thể mở cửa kính từ bên trong, giúp tăng tối đa sự tương tác giữa thế giới bên trong và bên ngoài của không gian sống này.  

Kế tiếp phòng khách là không gian bếp, phòng ăn.   

Đây là khu vực trung tâm của căn biệt thự.

Phòng ăn và không gian sinh hoạt chung được thiết kế liên kết với bể bơi. 

Về giải pháp không gian, sự dịch chuyển tầng trên ra phía sau nhằm duy trì khoảng lùi và vai trò của một công trình kiến trúc trong bối cảnh đô thị hiện nay.

Mặt bằng mở rộng về nhiều hướng giúp ánh sáng và gió tự nhiên đi qua tất cả các phòng và tạo ra một số tiểu cảnh như sân vườn, bể bơi phục vụ các không gian chung và độc lập.

Có những bức tường dài phản chiếu sự thay đổi của ánh nắng và bóng cây vào ban ngày. Nó dẫn các không gian bên trong hướng ra thiên nhiên bên ngoài, thể hiện mối quan hệ chặt chẽ cần thiết đối với điều kiện khí hậu nhiệt đới.

Phòng ngủ lớn được bố trí có hướng nhìn ra bể bơi. 

Thiết kế mở rộng về nhiều hướng giúp các không gian được thông gió và lấy ánh sáng tự nhiên.   

Một góc bể bơi ngoài trời. 

Các thành viên trong gia đình thường quây quần bên nhau để tham gia các hoạt động vui chơi, giải trí. Vì vậy, nhà bếp, phòng ăn, phòng sinh hoạt chung được thiết kế liên kết với bể bơi, để các thành viên có thể gắn kết với nhau.

Các vật liệu được tiết giảm có chủ đích, yếu tố kiến trúc chỉ làm nền cho mọi hoạt động của các thành viên trong gia đình và mang lại bầu không khí yên tĩnh. Cuối cùng, với căn biệt thự này, kiến trúc sư muốn thể hiện tư duy về sao cho phù hợp với môi trường sống ở địa phương.

Theo kienthuc.net.vn